Print

Torre Velasca

  • 1956 - 1958
  •  
  • BANFI, Gian Luigi
  • PERESSUTTI, Enrico
  • BBPR, Grupo de arquitectos
  • ROGERS, Ernesto Nathan
  • BELGIOJOSO, Lodovico Barbiano di
  •  
  • Milán
  • Italia
imagenes/5470_1_33010555.jpg obras/8299_8.jpg obras/36796_8_33010555.jpg

 COLQUHOUN Alan., La arquitectura moderna, una historia desapasionada. Gustavo Gili. Barcelona, 2005. 


Pág. 183-192.“Del racionalismo al revisionismo: La arquitectura en Italia, 1920-1965”


El contextualismo. Si el movimiento neorrealista supuso la primera aparición de lo que Vittorio Gregotti ha denominado «la lucha por la realidad» en la arquitectura italiana de esa misma lucha puede encontrarse en el concepto formulado por Ernesto N. Rogers de una arquitectura que respondiese a su contexto urbano. En un artículo publicado en Casabella en 1955, titulado como «Condiciones preexistentes y problemas de la práctica constructiva contemporánea», Rogers abogaba por una arquitectura que, aun permaneciendo explícitamente moderna en sus técnicas, respondiese formalmente a su contexto histórico y espacial: una arquitectura basada en una realidad más existencial de posguerra, que idealizada.


 Este concepto ya se había introducido en la práctica antes de que fuese teorizado por Rogers. Podrían señalarse dos proyectos que representan soluciones opuestas al mismo problema. En las oficinas del INÁ Casa en Parma (1950), obra de Franco Albini (1905-1977), una estructura vista de hormigón ofrece una retícula en la que se ensarta un juego de llenos y vacíos acentuados verticalmente. Las complejidades de la vida cotidiana y los trazados de las fachadas existentes en la calle se sugieren sin perturbar la racionalidad subyacente de la retícula idealizada. En contraste con esto, Rogers y sus socios Lodovico Belgiojoso (1909-2004) y Enrico Peressutti (1908-1975) –que con Gianluigi Banfi (1910-1945), muerto en Mauthausen, habían formado el grupo BBPR-, en su edificio de oficinas de la Piazza Meda en Milán (1958-1969), deforman la retícula estructural racional para crear una jerarquía clásica de pisos distintos. En el primer ejemplo, dos órdenes se superponen dialécticamente; en el segundo se forma un híbrido, pero sin tratar de imitar su contexto, sino creando uno análogo.


 Una interpretación más literal del contexto puede apreciarse en la obra del arquitecto y teórico romano Saverio Muratori (1910-1973). Para Muratori como se ve en la sede de la Democracia Cristiana Italiana en el barrio romano de la EUR (1955), la respuesta al contexto significaba comunicarse con el público por medio de signos familiares, y reafirmar la tradición. Muratori, al igual que Ridolfi y Quaroni, estaba influido por la arquitectura sueca, pero en su fase neoclásica inicial. Una nostalgia más superficial por el pasado fue la característica del movimiento neoliberty, surgido a mediados de la década de 1990, esa nostalgia quedaría plasmada en la villa de la Via XX Settembre en Milán (1954-1955), obra de Luigi Caccia-Dominioni (n. 1913). A este movimiento no le interesaba ni el contexto inmediato ni el clasicismo eterno, y creía que el liberty, el art nouveau italiano, aún era capaz de representar a una burguesía urbana culturalmente frustrada.


Muchos arquitectos italianos rechazaban el contextualismo, entre ellos Giancarlo de Carlo quien, tras un breve devaneo con el neorrealismo en un primer proyecto de viviendas en Matera, en la década de 1950, volvió al estilo racionalista-brutalista en su residencia de estudiantes de la Università de Urbino (1963-1966). Pero las principales críticas llegaron del extranjero, en particular del Team X, recién formado en el Congreso Internacional de Arquitectura Moderna (CIAM) de Otterlo, en 1959. Los principales objetivos de este ataque fueron la Torre Velasca en Milán (1954-1958), de BBPR; las viviendas en las Zattere de Venecia (1954-1958), de Ignazio Gardella (1905-1999); y el proyecto de De Carlo para Matera.


---


 CURTIS William. J. La arquitectura moderna desde 1900. Edit. Phaidon. Hong Kong, 2006. 


Págs. 471- 489. “Disyunciones y discontinuidades en la Europa de los años 1950” 


 La Italia de posguerra tenía algunos problemas similares a los de Alemania para desembarazarse de la mácula de los años 1930, pero en muchos aspectos la situación era completamente distinta. En primer lugar, Italia no había expulsado a sus principales talentos y, por tanto, poseía una cultura arquitectónica moderna más fuerte, que se podía continuar, modificar e incluso rechazar. En segundo lugar, el país tenía unos substratos de tradición que nunca desaparecían del todo, por muy radicales que fuesen las propuestas. Por el momento, el uso manifiesto del clasicismo era una vía cerrada (las abstracciones del clasicismo eran otra cuestión), pero había pocas conclusiones evidentes, y la década posterior a la guerra se caracterizó por sus vigorosos debates y polémicas en relación con el camino que debía tomar la arquitectura italiana.


Tanto la teoría como la producción eran más abundantes y más diversas que en Alemania, y había muchas posturas políticas...


 ...La diversidad italiana quedó muy bien representada por dos rascacielos que se elevaron por encima de Milán a finales de los años 1950: el edificio Pirelli (1958-1961), obra de Gio Ponti, y la Torre Velasca (1956-1958) de Ernesto Rogers y Enrico Pressutti.


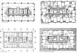
 ...Por el contrario, la torre Velasca se alzaba cerca de la catedral gótica de Milán, y contenía tanto oficias como viviendas. Se elevaba 26 plantas, pero las seis últimas (que contenían los espacios domésticos) sobresalían hacia fuera y marcaban un profundo voladizo sostenido por contrafuertes inclinados.


En las fachadas se creaba variedad revelando de un modo directo las necesidades interiores. La verticalidad del entramado estructural de hormigón se acentuaba en el exterior del edificio para armonizar con los fustes y pináculos verticales de la catedral cercana, y un revestimiento de piedra con huecos individuales perforados en él garantizaba que la torre no se apartase demasiado drásticamente de sus vecinos inferiores.


 La imagen general recordaba vagamente un palazzo pubblico medieval. En resumen, Rogers y Peressutti habían intentado dar una “identidad urbana” a sus rascacielos, haciendo alusión para ello al contexto histórico, e incluso “domesticándolo” (había chimeneas macizas que sobresalían en la cúspide).


 La torre Velasca provocó una especie de furor en la presa internacional debido a su “retirada de la arquitectura moderna” y a su “historicismo”.


---


MONTANER, J,M., La Modernidad superada. Arquitectura, arte y pensamiento del siglo XX. Edit. Gustavo Gili. Barcelona, 1997. 


págs.141-158.“Modernidad, vanguardias y neovanguardias


Crisis de las vanguardias y paradojas de la modernidad. Este mecanismo de búsqueda constante de la originalidad y la nove-dad sufrió una crisis entre los años cuarenta y setenta. Esta crisis era expresión de una situación general de descredito del racionalismo en el proyecto moderno. En el campo del pensamiento -véase, por ejemplo, Maurice Merleau-Ponty, Teodor W.Adorno, María Zambrano- proliferan las interpretaciones críticas hacia las servidumbres del racionalismo y de la modernidad introducidos a cualquier precio por el capitalismo tardío. Al entrar en crisis una interpretación lineal y hegeliana de la evolución históri-ca y predominar la conciencia de la discontinuidad entre epistemes, tal como se expresa en los trabajos de Michel Foucault, pierde sentido el mecanismo recurrente de las vanguardias.


 En los años cincuenta se construyen dos edificios emblemáticos y totalmente opuestos en su concepción de modernidad. Por una parte, el Seagram Building en Nueva York (1954-1958) de Mies van der Rohe, en el que se lleva a la perfección una idea de modernidad como lenguaje, estilo y espacio internacional, utilizando la más avanzada tecnología de las estructuras y perfiles de acero. Por otra parte, la torre Velasca en Milán (1950-1958) del equipo BBPR, como respuesta al reto de Ernesto Nathan Rogers había expresado en la responsabilidad de "otorgar un nuevo grado de modernidad a la arquitectura moderna". Este nuevo grado de modernidad consistía precisamente, en la mirada hacia la tradición, en la integración a las preexistencias ambientales y en la recuperación de la idea de monumentalidad. A partir de aquí,  la pregunta podría plantearse  en estosterminos: ¿Quién es más moderno, el que continúa  acríticamente los patrones que la modernidad establecida o el que pone énfasisenlacrisisdeestamodernidad,yparaafrontarla introduce referencias a latradición?


Estas mismas paradojas se han expresado en otras disciplinas como la medicina, cuando las medicinas alternativas, marginadas por la modernidad, han pasado a tener unpapelrepresentativoenlaactualidad;oa laecología, cuandoelrespetoporlanaturalezaylaintegraciónenel medio ambiente, que habían sido consustanciales a las culturasindígenasy al“pensamientosalvaje”’yquehan sido sistemáticamente despreciados por la sociedad industrial,sehanconvertidoactualmenteenel paradigma necesario para conservar la vida en el planeta.


--


La Torre Veslasca es un rascacielos llevado a cabo en 1956-1958 en Milán, por los arquitectos italianos Enrico Peressutti y Ernesto Nathan Rogers, que formaban parte del grupo BBPR, junto con Lodovico Barbiano di Belgiojoso. Fue un proyecto financiado por la Sociedad General Immobiliare con el fin de restaurar la zona debido a los bombardeos de la guerra en 1943. La torre se encuentra en una zona residencial y debido a sus 106 metros de altura y 26 plantas, destaca sobre el resto de edificaciones, convirtiéndose en uno de los elementos más notables del skyline de la ciudad. La torre representa a la perfección la revolución estilística denominada neoliberty, con cierta influencia del brutalismo y el racionalismo italiano. Las dieciocho primeras plantas están ocupadas por tiendas y oficinas, mientras que los pisos superiores al 26, son apartamentos. Estos pisos cuentan con una planta de mayores dimensiones. Originalmente se preveía una torre con estructura de acero, como se estaba desarrollando en América, pero los arquitectos decidieron adoptar un enfoque más tradicional con el uso del hormigón, que se adaptaba mejor al estilo arquitectónico neoliberty del edificio. Además, la industria siderúrgica italiana por la época, no estaba lo suficientemente desarrollada para poder llevar a cabo tal construcción en acero.


Carlota IPIÑA.

Up