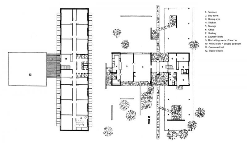
Págs. 395 – 415 “La arquitectura moderna en los Estados Unidos; inmigración y consolidación”.
En sus comienzos norteamericanos, la nueva arquitectura importada de Europa fue primordialmente una cuestión suburbana. Pero tras la guerra alcanzó una aceptación más general y se hicieron encargos más grandes. En 1948, Gropius y su firma TACproyectaron un nuevo conjunto para el Centro Universitario de la Universidad de Harvardque comprendía unos bloques bajos de residencia y un edificio de servicios comunes a una escala mayor. En el contexto local, la intrusión de la estética fabril, las cubiertas planas, las ventanas corridas y las formas asimétricas constituyeron un acontecimiento simbólico de cierta importancia, puesto que 20 años antes esta misma universidad había fomentado el estilo neogriego georgiano en los proyectos de sus colegios mayores. En el mismo período, Brewer proyecto la Residencia de Estudiantes Ferry House en el Vassar College, con un tono moderno más suave y menos exigente, mientras que la Baker House de Aalto en el Massachusetts Institute of Technology señalaba ya el camino a seguir más allá de las rigideces del estilo internacional.
https://64.media.tumblr.com/a00ad54a0ca32efd6d20b6de517a0380/tumblr_nyha3mlgs41rfll84o1_1280.jpg
data:image/jpeg;base64,/9j/4AAQSkZJRgABAQAAAQABAAD/2wCEAAoHCBUVFBcVFRUYGBcZGhodHBoaGiMjIR0lIiEdIiEcICAdICwjIh0pIB0dJDYqKS0vMzMzICM4PjgyPSwyMy8BCwsLDg4ODw4OES8cFxwvLy8yLy8vPS8vMjIyMi8vLy8yLy8vPS8vLy8yLy8vLy8vMi8vLy8vLy8vLy8vLy8vL//AABEIAMEBBQMBIgACEQEDEQH/xAAcAAABBQEBAQAAAAAAAAAAAAAGAAIDBAUHAQj/xABNEAACAQIEAwUDBwgHBgUFAAABAhEAAwQSITEFQVEGEyJhcTKBkRRCobHB0fAHIzNDUnKS4VNigpOywtIVFhckovFjc6Oz00RUg8Pi/8QAFQEBAQAAAAAAAAAAAAAAAAAAAAH/xAAUEQEAAAAAAAAAAAAAAAAAAAAA/9oADAMBAAIRAxEAPwDs1VOJqGs3Qdijj/pNW6ivLKsOoI+ig5FxJwLlpQdkuODPPJA9DrVqyniJOuoOvk/UesVh4lrjYpVABW1bJbq2g09Zrbu38uYuYiduQGnSZM/GihPjODbvGdv1jM2+omSNPUih7F6A6dJ/6proeLQOBccTkymd9p0OvnrzrnmPaWcc8zT6yaI+leAJGFsDpatj/pFXyYqtwwRZtDpbT/CK8xeXLDk5WIE9DyMjbX3UFpSCJGxp1ZGCxKBigOVVUBZOjCNx/VH21rE0HtKmKwIkGQeYp9AqzsVxNEGp3zQR5KT9hq86AiDtQ1xrEFXyWUgIAXi1mkQdBIiAFjpJFAIWb90XZdWe1ANxBrpynWCZgnnpSThiC5aIDMGuEMHBhgVJ3nYEczzrZucfFtzbe2qqw3XUEEDYKD4t5jQTQ92j4naZ0NotEKYZY5RMc9gQfuoJ7+GuOpS0My95lUKp8QiBck6xG5On01k8S4ddttrlIMxkYMNN9vURPWo7XFLi3AyuVmABO3n7pJHStDF4iw6IlokvJLFmBBGmvrP0dZoM1GIKiB84g6dNRp66datcRuIMtu2SVBLFo3JAnSBp4aoXiwG4kbDaa8U5oaQubbXaNNfPnQTozbgiTpIOo9BOmlXcEtqGDKpgTB1k7AekSajTFKAqZVAVSJyjxE6mdJO3WoXctlCpIExHztydesa+lBHfEH4R0+jn0qVAh3gToJ5efhqK5MKAREA6QSpPLrMfZWj8lk57bFGKtObp89iduVBRsXHt+JFzBgGh05SDpMGD9NeY28gclQ4Zm9kiIknRQJ8PKN6hs3yQZMxOsz7946VNbxBDqzqsqRlZTseVBAbruScrgH+rCzvoOehGlQ3cawY22Xwr0jc6zoY60S8LwVh8vegIllVAR1Y58xPi03aOdYvFLNu1ddbZbLHhzplbLJ5blSNidxQUuFYtO8ZHICmJke1BkT5A6x7633C5GO509kjXznbnzqjgLltpuMAHZQqsZgqsLlVViBpuavW1B8DQgALExqACNByk+ZoM3E4gIVJIBEae1J5zHrGlSrbZlV9QnIgj376ztWdxLHIrhsjgl2KywzaEydOo6ztUmFx1wscgMEeyeRIiQYjnJBHvoLRLE+EIBppy90k+/wA6VWrGHGua4AfMnXfoKVB2ioluKSQCCREjpNRYm6AIgkn5qnxR1AkHTyrGvXns3AVUlLpGrSHDKsAEEEkEACd4mg5nH/PYzQkBiOQ+fAB8vZGlaOJZpCoCczkMSJJ0GtZdoXG4nizACi4e8EzBLjL8DzrWxN8qyqCI7wnzIyDTXXUzRULWiQ4bSSY10+dM+gArn6JmuT0adeetdIuNyUka89jMjU76a0FcNwpZ7m2rhfSW2HSNaI+irA8K+g+qs/i2LyWnYKSACDB2B0zaSTEzAq7c0WInYaz6chQ1xi3atk3bqqyIIU3LjeEtEqoZY6H2qB/B8XbyW0Ft7j21UF+78MlZ8Ltpl1rfvgMuVjlmOe+0j05UFcPsXO7tMAzjJKu97KF01YW0BEjpqYGsTWgvFzl7rvluN7C3BEG5BMGCQFJEQRzNBa7LWntW1R2XxPcIQkyiqYCqG1IEb7a+dE1D/DXtraW491SxScxIzKpM5d9g0Ca2O9lSUho0GuhI5TQWKHe0fEkVCq3FD7EazHTTnMeu1THtPhwxR37twYy3BGtBXaPiODugOrOL2umWAWmIY8hoSI3mgxOJ3w5PtHU5AT7I6eVVbfdguCoYkQACdDprzJiDpUmFa02ZZbOSMsAH3SdANSfdTLoS3ITU6ydPiZ2O+goqjjsOBBU/N2gkMYneJn76bZxK51kmNZAECI0HIj1rx7+ZdST0ynnO+tRI90qWRgFB7snLqR5zoRr9VEbPFcHbtvbF1iM6qzKkMApJ9hhvtrGkjesRMSHS2u2VSNDsZO/InbWlbXKNYYAKN9hMwvQ+7mah4TbS5da2O7YliApJCsTMGVH2bxQSYbEgTm1JiNdo+/SrpxjtktZjbBeSxmICtsOsmPfVK7gWtlw6NbYbKw2OgPLXSDrWhhnVV7wPNy24y6A2zlEkt6nL5QKA54PwzEMLQa2jWpfMRBec2rGQNJEAzMVh8X4aiWzctYlLoDsO73KAMFJJnUDSdANaJ+zfaC13Jud+xJzeC6PnmC0MN16COvWhDiGKvuflVrulVXKlgkakknPIMqCY1+FBXFoKgIdMzZSRBUr0M6qd9ahZXDOFe2zJI8DSDGshhpt51dwSYW5dTv3vq7sGLAiGUic2oEJyka6aCiLCdl7Ny2BaxJW0S+i7EywGpWdFkEHnQDvZ/EXEy3u7Z1AYKUB0kRmDRynkfrqrxh/Cbis9wNdZGZiRAQIdSZOrMQNfmxrWhwHhwGGV3W46qbyZrblQrq0Sw3KwB8Nql4bwezcc94WK+GFMwfA7A9J8Ma8iaDLwl9raKvdSM3hgyeo6mddJqTGY51KgWzbIJDl9ZjfciNZEb86t8Dv4a7cVMhhFkF3kqViAiknQsxbWT4RA6WO0eCS2BiFuJcN9och/DIEnRjm2ERI1IoBZnUOhIzI2YqtsFhPziYgqJjQzRBgMWrW2cW08YyHugAxg+XPQyaz8DiDYcoMqRlzEwW5xl1PgZh6z6VOtvIpYKAxaSNQSZ+dyI3POg9NzJvmg7SSPqr2mYi5cB0ePePLSDt/OlQE2D7dLcGV7ZcawcwUjzBb5w5GakbtYbj2ltW7pbvAJLFwTrp4fDJE84ih7AWrlkC4uFS7bZmRsySJzEBTnUFZ3kCDPwLMAfzkrZVCiam1dzAs8eIsFHiVRHMw2+tBz3gOMjG4lWYi7duOdeYDMxBI0A08/Ktv5Oxe2D4jnUlj9nOYUD0oKwTlscp1Mu0kHXn7zqaOEu+I3CScpOVYjcnTLEz4aCW8B4jyDbeg/nFC/DLZR7TafnMSqwP3lMj6aI3XNM8p9+g5ctorPNsC5aUCPz1ogefeKdNN9KK7HimZdV8U7rIkDqvpvzoR4lxh272wtvvHyvCXsqyADLrChs2XWCPOat9ouKXLbi3DwzDKbQhsu51IaSdBAg6TtWHxa9Yvg3HuXBdS26qR4GBhivsgFlImdIA09SJcNiDhEtWCEuSmeLJhlPN3Ug+HK0RrJG2ulLFYotbumzbtFBadHtd2VMKNGmYZgDmjXyNLh1sK6m2Cgy20bvhlcMRmi22pW2w3JBE607jV9bK697culZlX0tzIyQulzQxtrpQWezuAtPYtG2ouYnKwIjKizsW03VcvOTrzNEnFbeLtqDhslx4Ge05gRzKNIiPP+VYWDtYrC4Ox3Hda6vO50JhAqgnTpJ08jTe+uXEuM2IeSWJFt4W3MwVM5hyMMJ02oBDtXisY1zLiMKFuJlGdZIeT4dZKnoI1+FY2Aw9y6WCoCynxK1wKRuZOYgRoRAM1NxviNy40HE3WJCDxT4guxOsTPP1rK4ey27puXQrgCQpuBM2pB8yQdwNdqDe7o2UZ2t65suefCdRKiCehk1BhuHtcfu1OV7jSEIJjfQsdOemhop4bw5cTa7u3byl1Z5F0Os+asBA5ZlJ15a1mNwxbdv88r2mtyvhIU3I5aawTuSNgIoMviPB7li73bETOm0xvOUa+W3pIqLs5w27iL3dWjMq5bO0A5SB4dD198coqQ8PNxyygkuZ8WbQloUCOWo36cq3+G58PdtC2wtsl1wymWtw4aSJ1gM2X3k8qAU43gmt3e7O6DxA7gyZ5DkQQNdIrLwof5SckhwZUrvmChoEfO1mjntRw9LlwXEUKvhlAsAHMNRGrKQoM8qrXLWa3cQJlurdS4j5YAdIDAmJgr4dqC9xvCtewT4i7ktXbQFwDvAxIYwxddTngkgEmNOddDwdjC4Swqoqi0UBEmQ2m5mdSOdc+7YX8Lcs2xas92ue2LrKQjMGOqwBrJ+c3wrJ4Pj799LdlXus2ttZaFyayqljlJjKOvwoOk3O0mAuAqwUoFGhQ9ZgaRA30rO4j2au4gju7zrad2c2nEIB6r7UkAgHlvQZj+EXbNxRcVbgXKFVYi4un7PtEjfnREna8th7llrXcgoxt+M6rH7TQd9omRpFA7D4m5YR7OINsIEyoCczAqTlYQdhmBJE6EAAHSpF7UWHAzOc6kqVVIQnMCtwCC0tE6AkExQfgOMFCQ3j82UGJB3Ejn5+dXrQRWF1GRvEGzJ7agCGhOuxB1BIGutBq8P7RXEOIAtk9663VkwqEwQrcvFl0GkzWWOInDIzyiMzl1zaEEoynxagLry8udavaDGWLWKZrds3LeIwihVtjLLI5hlIGmjAEjXceVB9y8rXklcq22zm2TnMqhjRo+eM3v8qAmwXZDLw03rkreuZWRImATAQZdSWEGeU61kW8DatyjL+dUzDNIEkAHLpEAzM8qJ+0HG7dy7h8ORNm3cSbsgQVCz/ZglYjX1rJwDYR8VizYCshLAJkJUBY1RV1hm1JJG1Bew1q34VN1oeSQcrMTEGAB5EgQar47DCCFzGApaN/xG45Um4fcRwwFtgwE5DAltABMQV1nlA99Liq5AbZDi4re0G0joQBM9CNxQYlzE5GILC2DqoiZHXQ0qIjwzNbt3EDSwObOV3B3AaCAQa9oNbsxjrqC7ZW3buLnkBXAYZpYFVYeIA7kkRFLhPG3R7svbdnusGRjBAHgzBlUCPCdIFCPDcTcwl1XUkkBlLEADfUazppuKOOy962yF0t2+9m6/tDMQ5LAAEbaxEjag5XwpAccCPCJcx5dPtox4rcQuuVSGJQFj0EmOntRqKEeB2C+PblAu+Uakaj3ijfE7AsCI7tgTG2nTeV1oIlsLJnWRMdRrvp5Vk4oZb1osQALliDOUHxLqT68+VbdjEe0V1OVhJ8958wCaHuOPma3MANftq2ukM40JO3h58qKMe0CuzEFEuMuZu7F58o0MvELlBDcidY01rBxF1fk1xLuGa0xW4bd0M7LtBQkyVUmBrpV/tPfdWtlncJmCuAqqDIJMBTmJIG8lSRpVTimKuYi1de27vaVHAthQszId20AgTrpRFrF8StuGt/KFtFVVNpYosFYJ3cSwOo5b1nYewTYvOjlraZmtXLbAElJJZ7bHUZWglfOt04O1dwZvl07zIczXViAwgDKnTcGDzoa/wBks9m7cdvHZS6TuQ2UARlMZc8kgwCdelBo4njNy01pMSroyppcAUQMpAyE+R9oazprUOD40+V7OHuWiGTMxu+05KwU1MFgJ18tOlaHEMSL+Ht3MRauBggDOMuQCSMwJ0nNyBJjpBoROJCoguQ2VzGQe1p85o1IMe6ghx2EClfGLmgjKTtroOmoOxqlZtWi1o2rTm9buBibmtsrzzDXL1B8qkxuLJmFE8mGn2xPKpOEW8RGcZcjXApJUsSQrGBlnQAE8tSNaApXiptP+aItCTqBMTLZY6E7x1rPcIwYvd8UEwBp1Gu0z12imYbiLC0CSSoVtYHzvvMekVTvWSZYsoMjKNTJ840n6IoNp0v4ZJYLbzqQpJJZ5HtHoI00Ea+U1k3cQ4tublwl3GhzeyfFl032Uj3jrNOxNq53PeMwAzlNTqT7RKgbKJHlqelSNibNywqC1Dd4GaSfEYKyTvsRpB57UFB8UrAZmMmAGB2HnppA6VtcEwbXlcW2XOjKApeWuTsYA9kiTM6ZTQx8juC7b9lc2QhiRlXXdo03FEHZXHNgwcRmTM14o6RGdNS1wdCCYECNwRQNtXCt3uLi5R3uQjLmYETsBuc0Rrzoo7F4BbiMZYNbuuRbCgKQG8RBI0YtuQZ9KwcVjrT4/wCUKEyMpIW4dFuezO/TK0jz2qPgHaW/hgNFZA905ZJDsdiDvGvPz60B5i+Ei06phtMhzZJJS2CsG40mc4A8KyZ10g6UcNgsPdvG38m7tQWJuuQxuSBqQREszgjXWNB0gv8AaZFwtwIAwGUF5ablxmBZhAEMAM0z05UEY7iGId5Fy6Uzrc31VlnLrESJPKNaAp7WdhriwcMF7tUAC5VG2pzNIjoNCSdzQvgMDNvW4wbP3YAByjWSM0jU/Ya0OzvaXHJic124zWyQXz+zE6k6EiOWUfCtHifEFv4s20uf8sy5rhFvKPCpJyrGY689zPOgFb3EDbuogditrOqScsq8g6KdAd9DvVG/dFxwygKQAhyc+TN6mav8a4bYVbTYS9cuXFuLnDgrIGpdW2GvI61WxgHytrlqGtEgDNCsRlA1gAaHnpQauIz921x1e7k0VyygkGIlBJgQfnaVc4Hw+38lDglZADKoAa42YliST7Go67e+sHEcRuLARlzEgOXKsABIIAIGswZrew94C5cRXBWLRK2yTllEloiMmpJPOdKCyjtmzKYC6HOTqI5AaHfb3VSxN4Mo8Rkjc/NAJ0nlJ5aVMWLMyC2ZJhYlj0EZdjA2FZWJLhQoXSY8XODB10iCY9aDzGo6hIui4pWVa2oTSTo2aSzDqYpVXuYNldgrFh5ZdPKDtSoCW5xwPmNuyqoLBtBTugcyzJKySSdY8qnv8bRwMuDCgEAsobPtEwdCY9aor26xx9nhZ/u7p/yVuWu02LFmzcbA3Ge5nJS3ZfwZWAGadZaZGnI0ALwMOMaVT+sMp0O8Qeh1Bo1xZ1UEg5lQEacxqwO3zY6UGcBxDPxC7caQ5F1mB5ERIg8xoIopR87ZQx1RjqI5mBvoIjagk4bdZndCDAYgaeY108qG+0B1y/OFy2QOZOYfePhRNwpgbecahNCRvssnfUSDQ12nuEIr/OWGXnGXLBPWCBNFaJ4bjHuEPYumTBY5cv72WN/PfetOwnEGRrL2mRGBVni37MHwEATlJ6a60Lf8QOIn9Zb91pakw3bfiDvla8IhjpbTkrEfN6iiNzC8Ix4gC0bZUGCGTXTQEfRO+vOkOD4+4hS5b5ECXUzrOU66CSTpWHi+1vEkt5/lR9pR+jt8wx/Z/q1M3aHiBXCH5ZdHf7+FNPHl08HSg28PwLHLaNrIFWZVFfRmmTmBaNhuOgqFux+LYMWt2s2keI666z/Kh2x2ox7W7rHF3ZXu41GmZwJ26SPfVY9pced8Zf8A44+qgLLfYvFlTK2gREQTB6z51ZTsbicmUsiuIyZSQsCc0gD2pI19aB247jTvjMR/et9hqbD8RxLpBxN8nvkE988xkuEic22g+AoDL/cLEFdXQNIiBpHmMu/nXo7BXyutxM2kHJy6ERqfOufpxC+zAHEXjLAfpn5mP2qs8V71Lr21u3YXLvdfmAeZoD3/AHGuFAjXUzDVWyAQo+ZHPUzNL/cRssNfGYbHKNBrpExE60D8UssuHtEO+Zrjz421hR5+dYrBjuzfE0HUx2H8MNitZ0PhED9neIO9PTsdbFso+LJkghi6ysT4RrABmSPKuTNbmtDg2CR4R1BU3UkEf+HcoOjr2MwwUq2LJnYm6unprpPOoR2RwShg2M3je8mnprpQL2x4ZatW7RS2qlnuAkCJAVCJ+JqLgvD0fDh8iz3jicvQLFB0CxwDAIjocYhVwA83U0EyDPI5oE+dR2uB8IQknG2jII1vId+nQ+dB+NwQGDvHIAQyCY19u3Q2LI6UHU7OA4Mhn5db2I/TA7iDy6V7hcPwa3cD28WhuDVYuMeXp0muV9zU+AtjvE/tf4TQdHb/AGCGzfKEmZEG56z7NNuYns+WLG8pJMzlu7/w0CcfsBbVpo1ISf4AaxcNbzsFmJmg6u/FeAE5mYuSdT3V0yfUrW9Z7f8ACrKi2LlwAKsAWrmxAI5dIrmfCMEow/JvzjGf7K1m8YtAXm/dt/4BQds4R2/wGJvW7Fprhe4SFm2wGgLbnyBoY/KZwF1c4pFNyzK96mb2RzYbxPMihD8nqD/amEP9d/8A27ldn7aD/kcXpM2W0oOT8Ss2kbPaV2tv7Oa6rAZYByleU9YpVS4d3yplJKxpAMa8yQTzkUqAjHYLih3uD333p3/DviB3uW/fdf8A012KvKD5y4FYa3xB7TkZl762SJIkDfqdjRY94I9u4d2B8O+gDb+W1DhQnjF1liBiTm9GcjXnRHjnt5fZzNDNpy9saE9PfpQecLvg94qCFBYhuUkkRB33HWsHtE5Nu5LAhWn1ktMkQcs8vSrHDcTkuJMZROnMzMH/AKap9qWC23iBvmA5aqdPKZoqJRh2j/lwP3Lzx8GzVLaw+GDZst9dGGjI24I5hevWp8F2VtPhhdJcP3ZeBliQCY2mNOtVcVwLurLXBcZsyWjGoykugMa9Goh/EcPbuWyqXSpzIfztph7Icb2y/wC19FXhZQpgFF20TYjvPGV+fmkZ1BOlCOIxVy2GOYnKAdT1McxU9h7rAHMNQDsKDSwXCrq2r65QS3cwFdGnK8mArHYa1nCKJuynZNsXeXvGC21hj4QZgg5deR2rr69m8GNsLZ/ux91B89iKv8OjLqR+lX/27ld5HZ/Cf/bWf7tfupw4Lhtu4tRvHdr8dvX40HzfbMXE107xf8Qrd424OJvFGU+xzEHwjnNd3HCbH9Da/u1+6njh1n+it/wL91BwXjFwHD2fEpIczBGhyDp6ViMR1FfSwwVr+jT+AfdT/kyfsL/CPuoPmckVpcFuqniYwBdXX+xcr6I7pf2R8BTsg6Cg+e+2eJW7asC2c5V7hYLqRKpE+sV72euqmFCODm7xzlKmYOWOW2lfQsV7QcBx9wvh76qjHVSAEbXx29tNdqwVwN0/qbp//E/3V9NkUqD5mXhl8/8A097+5f8A01Pw/g+J7xP+WvxrqbLx7J/q19J14RQfOnFuF4m5ZVUwuIJHd6dzcGyAHdetUuDdm8alxWfBX4E6902nujXpX0zSoOKpgL/dhfkt8HOxIFlhoQAN/SsfifZjGvdLLhLpBVNcvRV6nrX0DSig4j2J7MY23xDD3LmGuJbRmLM0QJtuOs7kCupdrQPkWJnbummt2h7ts0YDFHaLZ+zpvQcMxvGrix3YUqZ1j8fUKVJsW7Qc6Bdcp7ksSJOhCnwwZidwRSoPpSlUXdDz/iP301kUAkzpr7R++g4Vwq3m4jjNNBeckc5zPl+n6qsX7357otuydB5k7x61mdnsWWxl91JGa4zAzM+JipP451o4BLguPnUS9shRAjwk6Rvp50FFkIdVgr4VOfYHfl76yeOuXFwCGYKS0DpqT7oNWL2IuB0VidDlP0wfTl769wyEXXW5oTZvDLykW2Gp5gigKsLjMttbXdsy5FB8cSCuumXzrKx/EXe3iFVAqoLAVW8X60gmRGnhFa+ATNatkDQ20jn80c+dY+ItRbxPmLP/ALtz7qKE8diyysGtoRGsZhsR/Woq7P4DvEtsREopj3UK4tJDxyQk+krXTeyGGnD2D1tWv8Iogl4efkmHu3wmc27bMFmM0cpAMfCsT/ije5YJf70//HRg9gNYuJ1QisK3wBf2RQZq/lNvkwMGn96f9FZeI/LJeRivyNJH/itp6+CiLh/Y4I6MWBysDGXp765T2gwAF66Y1ztr6E0BcPy03jtg7f8AeN/pqRfyw4kiRg7Uf+Y3+muVWLDfstufmn7q18Vhmt20OU+IMTodDoB9dAeN+V/FgT8ktAciWfX6K9T8reLIJGGw+kTLvzn7q53iO8kDu7kCI0Y/TlqFbF3cWnnT9WdPfFB0F/yyYwNl+TWJ05v99Sf8W8dMfJ8NzjV9Yn+t5VzprFx28SPmhZ8BJA5EgCa8OFcxox0B9k6TOg86A/X8sWNO1jDc+Vz/AFVd4X+UnieJuizYw+HdzrAD6AEAsxLwoE7muXYSyxg5TGY6++iz8mj3lxlzIHXNZuS28aqVn1IC786A37Qdr+L4NVe5awRQyCyl4BHzfE4JJGoiZ1rJw35Tse1o3nt2Vt5ioItOZIidTcAHtCr3bPs/jGwSlpch+8OUZinhOrBtecGJg61j8J7O31wyYPFWotv3lxix/RkgZWQodW5FJ3igbc/KxxDMAFwxBEghG/8Ak3pXvyp8SVlUjD+Ln3bRtP7dCfE+AtbGZLguZCF8K6kGYIXmRGoqhiO8JthkMyYlSCdKDp/B+3XE8Ql10OHPdLmYC02mhP7flWEfys8SzZR3Ekgfozz/ALdbP5L8PNvHArE2VGxEmHnegDE8NAxIRgYJUbH9ryoDO/8AlF4orlM1kkdLU/56uYPttxO4s/KMOvl3Un09qKw+KcBe265VLoZJKkeH+qTH11P2e4d3zsGUqANHyn15kRQaS9vMfrmxNgQsx3Bn3eLWqeN7b4i9Yv2bjo63UKHw5SpPNYMH0oc7TI1u8VcG2/IqpyuOTQTA91Y73GZIENvJoNPBgCQ9kEiBOYrMTqQJ12maVZfyp7YC5k25zPvmlQfWVRXx4G/dP1VmjtJhP6ZfgfuqPH8csd1cK3ULZHgTqTBgUHCOyIYX7gEDaJ8nAn01o5sZi2bKWcJcjz1PTSN6CuxwPesP3Z5x4xz6xRpwtx31pNdcygjcDKxJ6T4R8aAH4mQtxwNvDPL5xH3Ck4JuoCZJVxvtKwZPpU3aDDrbuXVBBcPPWRod/LX3iqFq+e/BG8OJ/skTHXSgoYHjeKtqqrduBVGUJP1fCtTDcSuXVuLdxJyEKQzCQSCPDlEaxqNetDSYa4zMyI7CTOUE+vKtrD8BxDiFRbeoOpge8amYmgnfDWNjiiSwIlbUDl1byonwPbOxhbdq2qNe7tVtyDlkqoEwfmmNNawF7F3DBe8o0j2GPwqax2FIMtiRH/ln7W/E0Bmn5VcMPAbF2cvVSAeh1mn2PyoYU/qbvp4Sfriha32Iw4JJvMZEbaT1EyZ99NTsHaBBGIJHQr9oINAZJ+VbB/0N+eQhf9Vc/v8AG8Hcu3blwXmVmJCgqCpmd5MrWjiOxKOxbv8ALMQAugA5amYqv/uDz+UIYII/Nnly3oFZ4xYYSiXFUHdoM+kGeYqviO0VomO7ZoaVE+1GgJ667VY/3BuSCL9vnH5tvTrXi9hL0R36GNotvPx3oPU7Y2ycvdXc3qvwgURJwnizQy2bIQwy95cAaCJEhdiKHbXYbEK4fvlzAgyLbA+4xvRNatY0LDYp2YaZgG+kdfOgdh+ynEluNdK4JXcBSWu3NhsICEaeVCHanss+GdQ9m3da4GYtYe4QDPzs20k7DoaMBhL7fpLtxjz8LfRB0q0mB8IDPd/eVcp+gUHIXw+QwcPqTHiD6mYgajU7ae6jr8nXE8LhLjW7rJau3WUGMxRQpP5t2djlcty5AamYFEV3hFplKuLrSNyXnyIj5w5HcVi2uC4TCIXxfym9bsvNq06jIxfUsQq5iQdCGgUHaCZA86A+0/aK04GW4v5vMXAPTflyiK1+ymLxd4vexFsWrbAd3a+cPNuQ5af9q5v2+4Ki4tzmcAvmywADm8WhAkjlQZ3E7A7l7xBZCgJtyRJ03KmdqFxjsKzS2FKxyS431M2nuNHeERbqpbfVXOUgVYfsNhWnw3RJnQx7vZ2oBrsz2r+Sd98ls+G4oD965YwJ0UCOprM4lx+1eYl7Dg6aq8bdd6Nf9wsP4o70SCD4o+taa3YTDkIIcBAQPZ1nmxjU0AFY4rhwWJsXNf2bpH2GKZd4ranwW7qrzBuFvpo7f8n9gggPd35Mvw9napb/AGHRrYthbgUbEDXluY1HrQc0x+M7w6TEc9SPfNRWnABgsDzHL666qOz0AoqpBiVZWgxzIDDWsi92BLGQVG+gRtJ/tbCgAlFptWJB95+ylRefycXP6X/0zSoD9HuJ7LxHQAfDSvMdjL5t3F71hmUrqeun21535G5091ZfaXiKpaAmCzaaj5oJ+uKKGeyX6e7JkSp10O+hHnAj30RYHG5L9x2/VoSo00kRqfeTQt2NlsRfDkl8qEQd/EBv1Aatfi2Itol3MpBZXVTtJlQPcM5NECWJxZdblyZLEc9pYj6oFRYfEgFGE+zlMRzDrrO++tVVlbbkxAJAHnMT+OleYIMQkCZP+Zd+lB0bsDiicM6hyMl25oDETrRN8pflcf8AiP31z7sBiQL1+3uCBcHuMH/EPhRxIqKufLrg/WXP4j99NOOuc7lwerH76qFvMGmZjPlQXBxBx+sf+I01sax/WMfVzpVb4U0HTYGgt/LLnJ2/jP31E2LuftfFj99QmegpZhyAoHd9cO9xhz0Jj6RSN1p1uM3ry+FRgQdqReB7P00Fhrs8vppmYfg/yqAXJOixS199BKxA5n4ikr+Z+NQs/mPrr0legPxoJe9bqa0+EY82xcOUE5R4nExrsBzn1G1ZKEbCBWZxTtHas3BYdWznK3gWQZ0VdNZ93Og37/avFN4VuhQdmS2APi2ahztNiLzshuObhCDxEAEid/CAN6vXsQtu29y4CFXxMFE9JMVi47jiYi2LlqzdZLRKufCYDREqDsdOdVE3Cbg8E8nAom7wfgViYHCtKPBC7hcsfXzrUN09CPdUVZkHmaaHHWoA55yK8B8zQTG8Ov0fyr0Xt4JE+77KhZiOdNDt1NBZOI9Tr028qd3gJn41RzsOZp+c/OaB9VBbFwDbX8eVKqWfo9eUF75BiZIODv8A/pn/AD6UB9o8cLtwoFIW3vMTOqxoSPaijbtN24uW7D2yEFy4MoKkyB846tppoPjyrkOKxGYmNNvh/wB6qN7sFdBxdxiNMhJ15KQfrAFbfHLFo2zM57bqTEagrqCeQDLt5ihrsRcy3nYz+jb7Dr8Ku8f4r+eYLORiyEdQTIPTQ0AxcAMk6c/jP3ir3Zq6FujMdQdPhvVe7aKM6c1bXpp/OveE21NzK8gOVUEbgsYG3Og1OzuJFjHLnhQyZZ5CQDJ94o9/2pajS4hH7y1zLi9wpiy6QCjKVnbwwR7tq7zwztdgbyozIqsVBINvYncaA7GgFfl6H5y/EffXq4pTqCOm4++jkcT4eRqLUDkbX2Zar3LvCTEph/7n/wDmgElv/ia9N0nrRE2D4Q36nDCeoA+qp14LwtjAFofuXSPqYUAxnMCI9CP5Und+WX4/y+qipuy3D22Zh+7iHH+enYfsbg1XwNdIPPv2b3ySaAQF0/j7KRbed/x9lFjdibJ2xGIGnK4h9+qVWudg15YzEAeYtH/9dAM6R9W336U1LgG8z7vsonfsW3zcW/vtIfuqJ+xV7UjEpPLNa2+DdaKHQ68x8T91etl6fTW23YzF8sRYOus2W2/jpg7I40N+kwxHTI4Px6VBj96J8qD3cXOLgxItxOn7K7/E0R8axpwTMt1rIuqdLai5mYftDwxB5GardiuzWJv2nxgt2n793jO5BAViCIynTMD8BVRrd6rAqwkEEEEbjzoT+T/IMQptycNiQ1sgz5AqSeallYGjTEcAxVpc72FIGh7u4GI8wsAt7tfKhztnj/8Allsm1dVVbvM9yyVh5jwsTtGmooDXD8UstY7q8TIICMokzyJj6Z0odwPFrd8M1pyQpymVjXy6imcPuYi9YFy1h3uqUKl7bpCsBBHiYazrpNQdmuEX7GHVWw112zFiUAYSeUqTy51Bpd42mu+5inM7QAN/3adcuuvtYe/7rLn7KgucQRYzW7423s3P9FFe9+ZjT6a9DjnHuqvd4pZG7EebIwHxKxTG4hZjMbiAe/7qCyb69KXeJsZ186pniNokKbtqT7Ou8VPbxNs7XLZ94oJc68hSqKbZ1zJ8R99e0AfxW22IuZzmEaDmND8eYgeVRX+z7GMuUAqNTAg+s9TzogfBiRAZI5jWfMHlTXwoMAnxfvGeUxy5VUYuB4ULOaXXXQmfqPOTNQ3uFg6s0tyEfD057VrPw4E6nKJ/aHTcz6VOnDtFk67ySROhIH0zQDXF7Bl8nzoJ/Hxr3DcOyMuYgnQr1zDX7KJVwZbTKCJ015DWZGzT9lenh8gMFWBJ1326n30GFieGh3NxiIJ1B0/7QJqzh37ojLOh/H0VqfIV1Yk+Lf3RP0irWGwyA5VCnfy5fGd6CROIqeXwO1TK6k6TzqK7g1gEKPQc/tqEWhyBHKTt9FFWXueU899fdpXnykR7Ij8aTzqFMMeZj3nb8GnpZIGgHxPw1oF8pEnQeWlPXFMJgLB5DSonQalh7vwdqjKLr9tEWExJbbwsOY5DyNSrj7o07xhECc5j+VVxhwNSRy6/ympJWIHL8c96Kn+X3Rtcc6zIdjPnqamfjd8frbn8ZH11QzL08/xFSHKR7J+H86DQs9p8SuhuOSepBA95q0vafFTpd67qPxFY5twfDJ+4zoKS4YnqOe341oL+O4y99ct4I6kFfFaU76GDBPvFO4Vxy5hra2bOQWkkKuXqSTqeckms9UjfX8etJbYHQHedvrqDat9proYtFtiT86ZHproPTmayO0dz5dlF2cqkEKtw5ZE8joTUYTWDB5zGvnT0AJgBp1gEQPuoLvDuLdygXuwyLoFBCqB+6oit3DdrbaLphyPJWX7qFzaAMHLm5AfYedNOHVvmmfInXy8qoNB20tTHd3fKIP21Mna20Ym3dUeaj7DQIuGjWCJ+oUmtNHXflRB6/aWzGkkxzFeJxfCMJe7b10ykRz2iJNAYw0CCf+qDUV2wdwQD6mg6GMXgSN7EfuL91QkcNYxkwpJ/qJrPuoBRnIiAeX4NS5G+rQem2tAd/wCzOH/0WF/hSlXPm84HupUDmxMnQz5QPjMU4Op3ETO3P76qPfKnYbc9qabjjWACPWBvRUt0KWBUdNcsx5E9KZ3SjUFuYI5+elRI7ZpkiRqBHLnrU+YRMmeUjl12oj1XUAQ3qSN/pqYsIPjPoAPqmqDMSZzax+Nqns25MyM08/50U5lb5rmTG4MenloKolLpOvdGdeYP0irxsE8531jTprzOtNCMQQDp8PLnRFJVvAsck9CrEzuT/ZpfL7hH6O96ZPpMjb0mr6IwkGRHpXlos076ep+HQRQVbGKvGFa206CSp00Gu2wnnV9LFyfFEbSNPhNIXAB7LDr/AN+XOnBXPUDzE/gUEiYUHdtenKk9ojSV0EbidAPppr4bQCZ3n8GvO6jnRTsg3kHTc8qcFBEMV26a0wJPMD6fo+FT2kQ7DlUDjbHURyphVtIOXqBufwKk7pCNAKkULqs6iBtBPxFBEi5jDSORP2701bCgkTr6n/tVy4I90benvqBnUbxqIneP50DFVfL41IluZ+mefxrzPEwB66ffXqXhO5jTX8fXQOTDseWg6Co2w2gzRPlzqV35jMdOX1mahS406voeWmn4+ygabfMkxz5RT0t89+e+p++vFedj5Rtr51EL8ESTH42ige9lo2rxABz5dPq1qRL5iQdSPx7xVYlpmZHnI9YNA/IR4tTPPce6vGujY9OY1952pt52OmaSDt0+I1r228DxMw8tPqjWqIgyKRmmJ5DeOU093Q82J8/Tzp962pkhth0gjb66qC4I1aNdDr0j4UExSeunTX7aVQWrrKIzEann/KlQV33PotTnl6fYaVKgjTb30rnsj0P10qVBHg9zTG9pvd9dKlRGo3+X7q9tey3rXlKivDsfU/4aavtj3f4RSpVA7kfUfUKsr7J9T9YpUqCu3sn941Eux931V7SoHWPn+h+yrg5+hr2lQR2d/efqNPt+0fd9teUqD1va/sj7abd/Se4fVSpUEeI9k+o+ula9oev20qVBJiOXr9hryz+jb940qVBWxPte/wCwU4e0PT7qVKgsYX7vqNSY32D6H7KVKgZhufp91Vcd7Y9R9QpUqoe/zfT7DWZxD2vcfqNe0qDQ+Yvv+ylSpUH/2Q==
data:image/jpeg;base64,/9j/4AAQSkZJRgABAQAAAQABAAD/2wCEAAoHCBQVFBcUFRUYGBcZGhoaGhkaGSMeGh0aGiAdICAdGhoaIC4jHR0pIR0ZJDckKS0vMzMzHSI4PjgwPS0yMy8BCwsLDw4PGhIRGTIgICAyMjIvMjIvMjIyMi8yMjIyMjIyMjIyMjIyMjIyMjIyMjIyMjIyMjIyMjIyMjIyLzIyMv/AABEIAMYA/wMBIgACEQEDEQH/xAAbAAACAgMBAAAAAAAAAAAAAAAFBgMEAAIHAf/EAEUQAAIBAgQDBgMFBgMHAwUAAAECEQMhAAQSMQVBUQYTImFxgTKRoQcUI0LwUmJyscHRM4LxFUNTkqKy4RYkNCVzwsPS/8QAFwEBAQEBAAAAAAAAAAAAAAAAAAECA//EABsRAQEBAAMBAQAAAAAAAAAAAAABEQISMSFB/9oADAMBAAIRAxEAPwDp7tAnGofyx7V2wsdoON1KNYU0Khe71Ess+IlgsXE/C0j0xztqyGcVPLHuvywhP2wzNglJWYjYjw8pbWGNr+scsZ/6tzitLU6TpfV3YJgczcg+HmIMgcsNq4fe88se95jn2U7X5moGING6B0lSJkgQTrjk30xZzPafNSCopqsW1Ibmxg+MG4m4nE7HU8B/LGa8c8zPbbMhFZUpySi3U/E/hjexDFZHTFvhXafM1aTE913tNiHULBN7aRqNipBE/wDnF7HU8955YzXhRo9oqndhnamDqRXlCunU4Tmd5kRfcYj4D2mrVaKu/dli1QSBAhXYLYHoMOxhy7zyxneeWEjO9qswlQUwtPVUKCnYnn458XIQfQ+WBXH+2mey1WNNI0nEoTTMjqpIe5BjlsRh2MdM7zyx7qxzrh/2hM6nvERWF5AMRytqn32/li4/bGqJUpT1yp0gE6FY/nIO+w63mIBOG0w86/XGasK1PjNcrM0tQNxpaCL2+KR6+RthZzvbrO0qlamVoEoNVP8ADa6kA/8AEvAMcttsNMdP1Y914Q+zPa7M16bNVWhMrHdk2BF9Q1kqbNvHLBv/AG+wZgVWwmRsJnz/AFOLphg1+uM1YUqva3SCSEhd9487zgNR7eV2qPFOmaekGn4WBkgWJ1XvqtAO218NMdG1YzUMIGa7aZilTNSotH80KFbqAni133INuRxJwztvUNIPWpprPi/DR9IXlMFr2nfyw1MPeoY91DHP8t25rd6yVKC6FgMaaszIxuoaCZBEGVBiY8zdr9tFCVCvdl1nQkmW/ZlbNcxytfE7VcOeoY81DCZle2LVHYKtMouiWvuQSY8Ufs+l7HHlfthUV6oNOnpQArc6irAQSJi7Ejfli9kw6ahjNQwnv2sqKBqSnPPcSeYF97Hriqe2dYmFp0YmJJY8udxF/fDsYetQxmoYSqfbN9QDU6YW8uCYm8AT1gidpgXNsZnO2j0wrdysMY+I2EXbay3HzGHYw66hjA07YA9nONnNK5NMJp0xBmQ2qOW8AYN0tsJTHlXb3wj9tSO/UHnSHO8BnO3PDxV298JXbRQaqiBPdDnB+Jtj6xbb+s5erCu2YgJ1POeYIgn5MD7YshCQfxLwSL843gHYjynfFPM0TAMyACSfPnIb03HnYY9y9fW0IA4gKSZjoPFzmDEbScSq0akyfjU9TKWllAv8R8SqN9wCCPni1QzAYAI5bSYi4ZfLSQNvCOojE+UrOqlGpNVCtGtIuQLyhgyOq6tuW2AXfKKtUhW7vws1iGDN+YgiQImbX354yq7mKQKxTa7EMVgldSxpYDnBAtsQTtviUrUMVKQPeKgUqtwacHwt1Zd16RHPEKkFwRcRKnlA6wBIIvHSMSZeuUrsgXQlRdalpWCCFaNW948r+mAmq51WC0wTFStRdZiYSooYWMqQUG/7fXF/swP/AGtI3uG9/G9/fAnj9Luu7zCNqTvQW8I1bhiyj8sEQQTc4N9nhGUy4takgsf11w/BX4r/AIj1ADqoKlQWN1GrWLbkoWHsuNO0Ap5imaNMGrVUyvd3CH99z4VkWgmb7Yj4pmkSpV7xn0KqL3aGGqMwGmmCPEAbzHT1mxwWnmFpJTehUVVHw03pqX33bWGEbflNpJMmAS+DUzUcUwdJnwMRYMblWESQQDbrPM3PZLiLQKDr41cQRECTFiPiDE2aPW+BXGaRpZl4U0lqHUg1Awwg3YEg+K/P4hvGDOao/eaPfhvxVBNrAR8SbbQDBJ3A88aoMPmSKahAoNQ6Ui4kiZMflUAnziOeBPaHhOg0aqBbApVJcAkkTLMbT8fz5ARiXs04rKDIUoIAEW1EEte82A9vPBfjGSdsvVVD4ikrpJF18WnzmI/zHGQH7E5E00csU/E0MoDhjADiTFxdv1GDPEKlKlTYu0Emxjmfyg9f5XPLHPuzNXTXpODcH5qbMLb2n6Yda2XFSo9erAp0vDRB5HZnPU8hznzGLfRWrZNn0qxXxQRpBaFB+JhAk7DTHWbAjFPNUXV6bMzVCSw8jIAUIOp2n+QwcyLGqocWD6goME6BOx/ZsLz1OxxT44KSGiKiTTLEaWY3tEiLiCw/8cptMLefRWrCkWbuqT+IMxMQbgdAAYgclYjDWyd2sQQgEQBEG+3zFjgdW4OFolgdB1GpLRGqPCpJFxHh+ZxE3EKjUu6RvHIXVGwaNMecap6aT5YumNuH1W0VGSmzl3cu0jRckAahJJChZgRvfHv3UVWAqnvCgIAnSFER1+KYJPytgpQy6oqorEW0jkFAA6D+eK/Gcs9NVrUyGNNSGDG+gjY7gmYPLbDsYpdnspUC1RTrFQKkXQMCoiCDadmE7W9TitWLGu5q/wCHTCEuiQq1L6dYna94OnY2tFvhdQU1CSYNGgwNySw1hzItvBv1xtwlUPehiYaqZJt8IC3k22B85+d0xNl8woUEDVJIjVqBbkqt5zZvngdllI7wdXIZoMGAFYCTdQZFukcmiHN5ZGbUq+ImFKi5VYBqGIPMaTHNeTYnyHd3p90hYbc+R0g6pIt5/tdCMTYmJ6FDWVncKbj4dUjTAnlBMctjtiq+aNQN3hAE010qCNS6tKtMfCTqNv6Y8zeXVKmkUwdVyEsYgyLCwYggdYMbY8emjCn3ZXVqWImBqaY1DkPCYPlbnhsD92EfVTqHpoE8zGoT9MNdLCP9nNN1+8q++qm3pPeSOlmDG24Iw8UOeNcfUrWtt74Qu3LhcwsqTqoqBBgzqqcuYw+1th64Q+2bD71AZVPcrJKaraqm1xcH3kjbmvpCq1KVD1GtpM6ZEHzYEEnfytHK8CV6YMrBgAaQCUgX3AJk9Rz3xPlqEz3rEv8AlT4RBBhoFiwNvIz5YtZSnCliYAiABY+XKwBB6+LGa1E9DNrpCKxC2tp020897f6YH8Uy6SHkBkU3mAVkWtYnxbbWja+LOdB0gMvgK+ITubEEGbbQf7zgbWtIZiyEEq35hYwGMbSYmLz8swYuaNIaGXwuZAN7ExKsbwbggzHvclnVD01rU1hqQLKIlWEAOhk+KQZkTcDA/L01dEpVATLAEkXWDuGm8ah9cF+zFVylXL1PipNpggDwNMcpOx9iMUVgBUOX1E6TVVgCZBXSzCSbEERe+3rFjg+fWhQek1zSqVKSrbU1yw6+GDOr/TFbhz/g01ckdxUemdNj4VYC9psVPrgetQtXqh4Vq2kMw3RCsuATs2lStueEFzgKrmMxVr1GLaSAmlecbqDMCFA9DNpw05nNimoOpnkwFF3M7aY5/Dv05YXezCytQr4VaqxWFm3hEAEERHXBXh/4jlqoYSLcwVuBqUczc7DcD1tAfjFBalGpqR1qKy6DoZrrI0llBGppbc/s9Bir2bq62p0Sfw3YMRvJAAZCf2WsSP3cMOc7ypVp0qfhFRe8MxKrAXvGAMaiFIVesExsFqpkRls09IT4StSkeqsNj5br7HEBqs9PLZxm+FasE/siZDAGYsdLR+9hsVOnTrhc7RZU1cuKwAIpxVBj8pjVIjoZ/wAuDfA82KlBHBkjwH1W142kQffAcvzeU7rOVKYJUJVsVsVVoZdPQgMMOgU5it3IH4FGBU6VHFgo8hAn36g4CdsKYXPVGmJo06h9R4RtzhRh34FlBTy6oZBgMxIklmAk+nIeQxaNq8giALAAQI57D+22FDimYNXOIha1MqVH5dQBZpHWDHth6zNRUptUc+FVLE+QGEPhyVqlQvTFMVAxqE1CQAHDCBAMm/PkMQXXK1ajNUkortT07qHBFmVh52mZmOmKvEqSLWpVJHdEw6aoA0nSojkQtT5e2CacMemoRWRgxYkMt5cmSHUyBfeD6chTzCEhKdRQpNUKXUzrWoGUMGKgrBPMCYO8HAWzCairAoPys97n8pbfYmCfTznd6dWjUFNdasjBiesGzA3nyOIeHwaZpuqtVQgPImejiTzG2JONZRe7LAIrqrDUIHhIg3FwBZrfs+ZmALThEy9ZZOqnTSos+EioFJbf4iyKD+1qvOI6FVanehiKarUrFtRA1+O6XMhbDU2022nFlXKZWrl96lOqlNTG4Z1akw9jte6nHnBssalMq16SVHZgwk1WNR4ud1X4rfE3kL0e8NzGtzWA/COlASY7tAIDMd4Yk+YXSTYeHbiuWWiSwIEgERzINlCzdtRkDqY5mbvFqpoKWDwQQNGrVrmwQA8yTEkkDfrgLQpB28epqq6jSRZKppR9msHZT3fjJ2ZYAvITZJGq03Z20uXllUkFSD4QzTPhAHhEAHVMmYgoHTU0A6FDEuNoKhmBWRZGUyD1U+eCFfKgAZmCFYB2QbhDJD9O8QG5PKQJgHEHaGgNVFtGtu9QFZ8RU6j3ZYm4MGB63g4Bs7B1NTZgkESKLBSPEEPeBZMXmGPvhxoc8J3YJlY5uoJ8VRQJEEIgICwdoOu3nhxoc8a4pya19h645/8AaBU/FhdWtaKsIFgJqSSdtgcdBrbD1xzrt2p+9Ej/AICD1BeoCJ/p5+WLfUgI1WUR0UAoPi5Ei0TezDcRiVSuh2W5YEherMSI/wAo3naR0jFCk/w0ywpkiSTc+E7qJgn06YvZQKHIXwx4lawAkRpkzzLWNvFjNaiy3D2cBasqoB1BbAjYy0zIEx64pcPolqjpTU9CpBusDeSNwVaxBGrBJ6pqHQHBU7sEI1EydIJMadvUSMC9fd5gS8q6xaJDrsDA3Ina589sZESU2y9YU7MpXWgG8mRpXUYaI2n62xeDRXWrTYw9Pu2iZOnTB8R+KdK3iIiMaccy/eNTgkhpRWMSGN1gr5g/qcC6tRgpqL4XRgKgksS4ZQZBsoHhIO5jyxRbo0wcy6hlKOA1yQO8iCD5mZgb6RyxDxTTSrF2hfwSVAsS2pwsBdrHb908sXMzlaaZdK1MnvU/FZS12UxqsLEaCwlREdYwMzVNalekxIKGqE1QdJRWUavS5G/XbFgMZXLvSyghiCwgrcnW0WBFucR5GdhgjXrCnTDFyyqqKiraWPhgXMliI6QZ5YlzOSV64LtKJTLhQNUkkgSBeYJIA2tucUhTSpVVWkU6QJgg6hVfUVUzEEKJA5EjEBrs5kdKF2EtUMufMQFAM/CsQOWBPbrJsq0szv3T6GP7j7T6G3+bBrhuYKArDNu0ep3BO4O8CcXc/llzOXqUv+IhA8m/KbjkwB62wArsvVWpRamdrpG/hcT/AFbFH7P3IWtSbdGBPqJVhA/hX54G9hOIMtRabCNU02ncMLrPvK+pxepuuS4oyOYTMGVPL8U7E7SKoPs3ni4KXGk77N5uyyqUaaknmQpsP8zDD6hi1rf0tjnSODxGuNwcyojzDweXqPfHRcxflPl/5woW+2WcYU1p0wGerUCgdNPiJPSIHtiHs1k2o0yGM1HfUzH9kE6d7wbkeuNeMp3lZRTt3Y7sC8anILADn+X3HrgnVR1IVPyxeIsItvOIPaTcyBJvvcnl7dB/XFfjOWSrTIUgMsMrXlSpBExytJHl74jTM6ZLOijaWsJ2sZ2Mee07DEf3pANqj6lJKik+ozyJVYkCSJMb4Cpmc8FK1yPxKMU6yDmjbOARdQbiLb8xifMIaqOmxZSFPKDzg79YwOzulwtRZNQIAaTq9M1aZEvTBcAO27AKYt52m4TmiqtRD6wiqaVQfmpOJWf4YI9sMAao7Va+X0sVqO+iqDurUSTq5iQGcr6DBvhbEUUpKGBRqtNjMEClUN5POIv+8MUc9lyufyrG4cMQJtKqRImwMFf+UYjz1Tu6mZQSVdqYF5qKK0LUIi7eGmTI2N7yYvoIcJC1X+8EABQe7G7aWsajsblnFlkyFm9zglnlVKlGtMAs1JmmwWqLTO41hV/znFtchTKqVKhAPDERHIqRIj2xVrBTTehUAI0sILAE0yJDJEbXWbXXlIiDTL1AidzEtTAQL+0okIQD+XSBM7ENvaQNWoUqZamxXw1QVcHdNDjS3RlJUR6YuZaqXp62YCpSJUmIgrAIaD8DQTHmCLjEPGK61KdMgd01OtSDeHxJJ03tBHikciMSehq7EFe+zoG5NFzefiV+hjcNhzy/PCP2CzLVK+a1/GlKgj3J8SvX6i1ipjoRh5oc8dOKcmtbYY5926A+8qQRqFNJDWlCzbEXmRPLY9cdBr7DHNPtEqAZtP2hSSBy8TNqgdYG+F9SAeb0lZPxs0lY+Hcg6o8MCLD36Yj4U1MVAagJkGDM6j+0xbyJEEjeTynU1lLQ528LRJ1TOowBaJAjlHMg4sOigMviDBCw3nUth8I8LfBeYESZxK0KUHpu+k6gg1DSuoSLXYW+HTED1vi9n+D60YU47xVD02UxDKZUjlcgi3U4pcAY1nNTXcmw5g6TO87nUCR7WjB6rTWgHqaoABYyZNgSQvnjIVeNZ5DRytQSGdtekGSAFIO/5gxAny8sVuN8NVPu4Vv8ZWWoTPjIaUqEDm0n2PLHuRyveUs3VdStRe7amp+BFq1NR0zzsw9PXF7itanWrVgSAKWXpqh562AcaQBJIOrbpHPAQ5YrUyqsq+NUem5MRpEkqb7jVHmB8g6ORToGFOhiw6kTMGd5I9N+uJ8hndBqhgFNQBoIMhpWRczJYtIvM4r5Lx0qdNlhQ3xDeQrm/wBfrgGXJ1QyZnMfDGhdIAA/DkKLi/iLcoGCvB8qKNLXUbUWBL28Zdo1f/kJ98L4rMAlNCGUaGYA/FBBIM7CefOBhjoIKtRZK3EoQh1Ky6QdVzcSdzzbASpTRyDLEKLiSWWbXI9z1/mTKJEWM2vNz6nGqZUDodztG5kiByxZpU4GA5V2zy1TKZqo1LwrW/FRo2afHE8w1/IOMGe2ajN8Oo51RDoVLRuochHWeUVAt/3cGPtDyPeZPvAJei6uP4SQrD0ghv8AKMDexOZSvTrZSpdKobSD5qocD5gj0JxsAOzzNVzK1GHiq5hHMbSWLH+vyx0jjOaFOmzj4rBf4jYE+Q3Ppjm3ZX8KpT1kakrBW9Q2k7/5ow0faDnWppTposySzsTsCCiiOZaX9NJOJRD2apy3eEEkDVBuSSbeZufpgzmcvUaPCb3MECB57fLArsvmWSm7MugloVdxpABm/m30waObv4tok+1p8xt8sZFJ+HHvKdSSunUGjdiYNwTtYydzbyOL1VAFtabbdLmSPf540q5guVVTYQT7gxBHPEzqCFvBUbdZ5X3wAepRLJDAMjASBewjr7HywqcNLUs69KVhUcK240kioPVgS20XLYZauYUNoEkSV57HrBuP1zwt5lAufoOLK408oB8akXtuRbzwgmz7Oc9SpuqnTTZpi8eIHYnmumL7TzgWEGviGqYpU6VOo3KXQuqT6a2b2xUzFdhxCSJ00SIiPzdPXrfG3DnNSvXciFLU0MgT4FJIO0CWn2wB9XqB2qUl1ICdS7aid3p6jEjpbVJ6AmF+7r09QIIDdYdT5z4kcD3E4tHNwgW1yxIWY0gxNudwPXA7iVPXLqO7cA6aizJUEwrD8y3IhpHSCZxBRRDl63eOxakVCVCVIYAEgVGiQ4UkAm0g7HTjbtMlMU2dLNABVgV1KrhpUncqR9WHPG65tahNOoBqQeJQ3+IDbVTk3UyPMbeZqq4bK1ac/iItSmzc2QKxQnkdSlT6zgHLseoGczQAABo5YwPWqB9AMOdDnjm32TBi+aqNeVorJ3gBo+hGOk0OeOnFmta/L1xzjt6f/dyJlKKAeb1GcKs8rBsdHr8vXHNu3lIPnVBkRSpkHzl4vyi/LnhfSAo4cqrTVGbW862Ug+ExqttMkX8+cRiq1M0zIWyTA5FSIETzvHntY4N5GrTSm7FjrChTruRpuABsQTflN8D+JBREanVxMRANQ2JkxMEra8TeMStRJwR1pVKWYRwKVQtTenfwsAI5AggXNot0IOGXtdWAyVVlgsdCgi3xOos3pOEd+9ZdaqNXxsq3f8ILcL1A02H5bc8TZ3imvJ1MudMNoekxJkqroxToSm38JU8rgYz9IKKlMkgVMrQqsbzpoq5Yz1LBAfXFnsgy08lUzFRiFd2AAuxiKaoF/MS2oBerYrcVzhFBKlQae+yfdKJloBS72sTq2GLvY2mKi0KYvTyyNUbocxWZ2A9UpkmORccxiBf4hRZOIoaiCmahSpoBEKaheASbTqsx23jEHDqCtTp1P2qrcuRMD3Mn9CzF9pWTH4VXrNI+3jX/APZiuqU6WUyzCDqZYjeQahf/AKus8sQe5ag1R0qRC6gkiADy2mbxG0SW6HBPONUpVPEgYFjsdJ1ACSXW4JAIi4kgRgrluHRSQjcANpi3WB0Mz6E7HFx8kGXUYkXJI8QEXIY7wSSJEb4DzhGZL0wCGkEg6hEAbCfzev8AbBEDEWTZWQMjBlNw3W5+WJoxpGlWirq1NxKsCrA7FWEEfLHJFytTJZtqSyalJxUpE/7xDty/OsoYHNumOvDCZ9pWS/Cp5pbNSbQx28FSw+T6Y/iOAU+Ht3lZqgBValZqoDWIRnZ/FHMKeWDfbDPB80tMQdLE/IBFnynvfngZkWPxkCDSqRHXSRF9uvvgPSep3xNSZsJJ257+5wU806bhAGHhN7gQNV9zz/vjEzC3C6oUkM0iwMkR6fqIxCtXwK1TvPhJAEQQBqs2wnzvOPRnVJVTckxAB5GNwBeSL7XxkT5CtuWeJvERIMwQLX5/6Ys5jOLEWmD5R8/M4ieqpAYbwJJPh5EgH+/vgfTzMkwCosfUSJPi5Cf1GA0q05vPQz+YEG8b/LALtGISnUI1FKoMwQIMnboYW4ww1amqAGULERJt5wB6YF8YFNqNWmSO8AF5kmDK+txv6iMIKmRrznarTEIqbyILKSBf6YIdlq6Gk0QDVqVarMeQJYD6AfXCzw7OAVHY2lV25sGXrsLkYO9n6QXKqSDcNMRYaiL7XtzOLRecnWYEhYUN10i+r6nl54uqIUv+X9m9yIgkE3B39MVco7BVMgc4gjc87jePS3uJ++EmoPEsGVuefTpq/njIo5ug1RWFOab0leopIAuwPhMj4GAbzttIBxBxQIe8rICFq5Z308wyHQ6sOTKXQEctLYMLQaolZtJVhTbyG3waWHw22sQSDgd2vXua4I/wszRrhSDZalWmqusbXZaTb7lsagM/ZQRGYveUt5AET/PHQ6PPHO/socFavWBNupB398dEoc8a4s1rX5Y5d9pH/wAtCCZFJZjpLX6frzx1GvsMcv8AtHY/egIB/CSLfvNNzvhfSAdOixTVqJLGXkmAPhVmY7CbTPIzEY2y6sxQQDJhdROlRzmf402giAZHOTg7kLWWQqrSdpidSr8QA25gC3OcbigFZKVMy4TU7E21wbGAZiSNvyjliVqNODqddU+GF1yGMAk9DsZABE7+gxDmcuUc0GGlXYVKc7qGJn4Ta02/dXBvKcOpq4Uk6dIBJTQC8zYmZNvhJPPziv2vphRRZGRXupIBGk/EpM/5/njIqcbSqKeW7xNNPu1RWkEGFDTAMqYHPF7g/apcvQFCnS1VJJJLCNRYlmPM2hYi2kXPIW4Z3oB2ZgKTsVJjSw8LRqsRvfpitX4elwPA4JY+F9JWBp3J3bUNRAXe4wDfxvMvmci7tolKgdQgJWEVyRqNmYgNttIwHyeYRqOVB2V6wa+xJSLHadc++LWWNehTWnU/EQnV/iqyBCryQiiYI1XEjlY4XeCUteZpULkGoqmfJhqMcrC/pgO1aItilxoqKLam0qRBMkW/iAseY8wBzxerOFBY7C5wl8a40aqaR8J1yLjUUMgGbFSQtx/fBF3sfX7ugwqGFXU0k3gEgwN49uY62LcE4qmZRnUQVZlIO8A2NidxF/XCrwU6akKyljSkCWYVCIhJnfVJ6XNjvgr2fzMVyoAVKgsAlpUSo1TyBuDeSbczZVpizLlKbuF1FVLRzMCYEXnCLxztZTr5OrTNNgXQgRcAiGQk9Ji/IjBXtlmcyGSnSp1UJkLVp1aY1Ej4TTZhI85Ug7bwecvw2oqNUqFQ2oh1qkBgxv8ACx1MWkXAIvvvioIcHc93pIiBY9QV5ee3yxvm8udFNis6rk/U/SScVeFVAVuLqO7YjqCSrAz5sPOxwbo1CEAYaiGAAgbEEkXsNt8ZVu2Z1NpVYnSAdXighfEIPhAmZ8vl5m0de7pmodTBgpsdUiZb9o2vO0XEYjyuYpioyswUEqploKgOu0XtB2wbz6UgC5KlkEkgbmPEoPSJHnHyAOyu4pUyPEyljz0iwYbkT8SnzPPFbMIV3YAmx8QJIN+n8vlgxQFItXWoPERTKKh21az8UECSDPptGJszUpMmh0VqqgAOCTYXBBjwraL/ADMWAVXogSA6kATq1fER0mRvHkMCKhM6pJIEkyTCzffcQCfb5l1AmACZUgyAR7AjqPa/XFWnVoUw7oDymAdvE2x5C1ttjbAJ+XfQASIs6W3kC0+jEfLDLSRnpogLfkVFXYkgMSS0bCdpEje4wuV2DOZG9Rm6GG5R8sNnf02ImCRT26sxMgjn8Iidt8aoI0VpuNDtMDxHWCY3Gq/Pp0nY4lThxgXITcmSse0Ei8cvSdwICQNZDtcaotEiTYRp5RIn+lheIFEImzXBYx4TBgrtIsJEbDGQb4ZTLPUWSYIUiJDBlmQSbAgmJ9MUO1dM/c6NQCTRNKqxiw/JAIEEEsCfT0xf4Tm6b1U0KwUIVJ3HgIhjJgABjI9MQ9oNRyTZamvjap3KmQQy06hcXF70xN7XxYNfspEPmBH5VPuWbb5Y6PR545r9kbz3t5Ippfy1McdKo88a4s1rW5Y5Z9orD76JIH4NPf8Aifyx1StsPXHJPtLY/fogx3FObSPif+WF9IX6DhGiWUM6hmUz+E3+IFHWwPsMP1LJLTUVHcL3jKCgnQE3CJp3t4SbgyTa884puQ8DkT/Yz7xh04NwotlxWq1KskuoCIzqAsH8g8Iv6b74nJYYaFbKmn8QFrpMGRyVbAibYS+0pFSmxBnRUFwDdTbnuRq/n6kNmOLs7yapPjaCUMhSfisYB8hG2PG4kz0xTNTwnWWGjqBeebGPa2GKu61rd0qqS8BYj46jvqgfs7gX54I0alfVWNdEqVQRRZXcF0UBCAndj8Q+PodztGAWWzgptqDFaigsCBMERp53v16e2LFLj9RXaotZw7eNiE+KoRp1G+4U7xy2wwMnGMp3KUh3QVpnwsWpMYM+BxKVJIseu9sL+SqmlVp10kstVjEH4fP539cbZvj1Wrd6rtAWCUE6yL87fnFrWFsa13NOmCee9uZIkadv9MZHW+JZ1Pu5qAyjJIN7qw+n0xz1qjFnplyFKhjLEiRcMRcksSLCd4vyCvxwlTTFWqUkBU0jSDzIEwJPLa/kMWvv4eTqqHUwVZROXvY/Dba/kMWkHMopDqQ2rSoOlQrNIJKmJE3v5k8yIE/B81DUiDJBgUw2iJMyZN58NgbxExuupx+nDaalZQSL6UFhO+kzMlbbb+WJ14pP+HXrAMwCkaViLX2jceW/S0DLx+tksxmGpZhNXdK0GWWCviYHTHhi/scAc81OqWoZRqFKlpnvKY8Rm2l27z4Li4Biw6Te7M8IGdeq/e1UEKdUrqOsGOR5b8unkBztVKZqU/xJ7007aImm0HpzKwdt+ltCDs+jDvQTPwk/xRJ/rg5lkLgwNwSRtOnqwvESJ8sDMtQZsxVIJlCN2BOnQADKSp25YJcQdlprAdWZtJK2Y6ivXlMYl9Fh+HK1TTMksIVRIVfAQIEQtj9N74NVeGJSRNJ1pJGkgkjwtLA7AiCYt5RF0arxCzsGqmQtMeISYi9hew/6his/FtzqqwBoH4nMi58xGr5riht4VQeiarMRqYLTALX002qU7nb8gJG4vjavk0gadUv4maCCTa4OzDbw7+dsKLZ2RqmrCLo/xPzNqJ5XuXPoMaLmdJ1fiTTE/wCJ+ebcuRKyP3WwB7PpU7ym1MlwZDgiChAEg9Oge4JU9cUeI5aoacGLEJBnwyFIIOqCT4/YD0wDOcUaQVqWufxN5i220afmcbU6oI0aX31v+IbhQY5WIGu/PWMBUytMGooJsHUEgSYmJA5+mGKjlm70r3ezSQSQWJQFVJ9PFH7yzhcrv+JqgqG5SdieR3i30xJXzqEse7e8BfxT4VEADa50gCfXFD1RD6Ce5/dOkDSCo2Kt8WxMATMc8DGzNN6mosFe42tHkG52PrO+BPZ2pTbNUl7kvcIqtWKrrM3Y6DadR2t7YZ6mVo1BVnK06Wik1RXSqXujIII7tLeP6Yzg1pOKVSkzFmDMKbNELLMhkwLyAyx1IwQr1/8A6gniilp76Tt3mk0oE8rM3rOB6i3dn4TBBECGW6sD1BAImdvmvV+MVGqNU1gMCgBB0iV1m4YwAT8p3wlDZ9l4X7xnAh8ALBLR4RUbT9Ix0ijzxy77IXmrmh+4h+bNjqNHnjUZryry9ccl+08qM6CR/uafTrUibTGOtVOWOU/aXTnOliJAoUyd7Qz39IJxb6QpplWq1CqkeK5LEAXPO/ljp/BOCu3DDlqdanqZnBqL4lUEiVs1yBI3xy3iuW0k6tyTIA5jz5YYeEcezuUo06WWRGpkK3ipywqVWuu4sSQBbnjNVPU+zbOF2KGloJOmXIOnVIJGmxjljcfZ/WpUqtSq9MCmrVCFltSKNWm4ABlT15YjP2h8QDlCKUixHdEQRvMvyNoxBmu2/EKyNQfulFVWS1MqSrAgkEta3PFAzs/wv73VFPXFVlYgNsYWQARfpysAcEuL9isxlqZq1GpMPEYUk/CrNGwtAP0wIyXEa+VqLUQIKtLUniEyHBEkAiRBsfTDHke12Zzi1qeYNPu+6cSiaWGsFJEkzAO2Cl+hximtPR91QtqL953h1TEAAabQYPtjRa0UQxAO6hSbA+G/qOuL1Ps7BWS4bRqII/MwYqAdPOFv+8MaZHhrVqgyqEEksFMwGKSZkiIgYnwUGzaMR+CuwAhiPU7GScXcpxdKZn7sCCbTVJAHMARz64P1uwFVQpRvEDJBcWE9dNzGLGT7FaXVao1hgRoNSLCL6kAMj++HwC6XHabVEofcaS6qiJqLtI1kCYjlqmJwQ4t2o+6V6lBcpSPdnTq1sJEAg6eUz1xebs/SNZqgTVUSotQ/iGFKlSABHiFud8Uu03ZDO5jMNWpimNYWZqaTqChdo6KMJgm4D2tqZmvToJRpUtZILhmMQCfhkT6eeGz/AGAZYu1EyDc0jPmSe89cJ/ZjsbnaObo1qgp92jS0VJPwkWEXucdGaS0MLbQPP/TDEczNMU8w1MMWNSjSqaogtIcSb/u+QgcsTPpfQrkqjFlkCSG8MQoF/Ii88ukWfrzmqThZ/wDY0IHvU/vi72dR2r0QwAHeF7j9n15zp+WJ+qJZn7PU0jRUOoCBqAAkknUSAbi0egwNX7NKgAHepaTud/P8O42t5YHVu2/EVqBDUQSuqDSXz8vLGJ244gZIqKQOlNfKeW9xjXxPo/kvs8RUValQyrEnSBDTcapF+nzxu/2eUdECpULA6pIXxG1m8Mxv/wAxwt1O3PEFDaqizyIpoBz3BXnHURBwT4H2mztdHmt+IoJVVopDAXPig+I7AWvgfUdT7MKjGe/W5JO/ONvBbni9l/s6XVU7ypAfSRouVAJ8PiWw+Hz8PzuZfiOcLEPWIAEn8OnfyBK77Ha4OAeW7ScSaganer3kpCCkkaHvqNrWn0jnibD6Dcb7OLS4imWRiylKTS1o1MU5dIB85OCWY+zKoxlcxTCgACVaSBaTHM7++AdLiWZzWdpVKjg1WFIAqAAFswsLbt/LBrhXabPVGrU2rAClqAikkkKSDci3XFVb4b9n1alVp1O+Q6XDEKpmJjc2sL4N8X4WaVCqxIjuXXwgzJNM2PQacUcvxTO1KXeJmVFQKSUakl4nawjlf/XFHPZviDpUTMOndd3BKosNrNiGC/D4TIsfEt+sFRm8CqTc7k7zE32g4U+I0iHcSNAqAx5ld/lhmSkGpjQQSoAeZkGJtAsIv6WjbAHP0VZa9TWbOgA6ja5PliQNH2QsDXzMc6an/rOOp0eeOV/ZAAK+Yj/hL/3nHVKXPG4zXlXl645n2/y9M53U1QLNFBp6wzkHaN5x0urywldrskj1wzJJ7tRPdhubcz64l9ITko5Y/G7uSfyOI9xJOIM0jy0ViobT4RSP5SCsQDpuOXQYNjIZVYlPeIHtAjFtKNAAGmhPo0H6E2xnWidR4ag8ZqC1y2hj13G3T674noZZNS1GqLpi1iDsRKyIA8WwvthgzmUn4EYnpqB9iS4xqmRI3o0g0btTZjPqJH1w0LfG1FQh6UuZ0tpEz+ybb2nG/ZegVeqKiMAafwkFSx5ATEmSDGGdOGO58dKk0bN3Zn0H4gON1ydMWNMFj+VXYE+qipA98N+CqMw7lcuXN6atWe5IYa5Hn4SB6EdMQdnsqpzdKprIXvKoBmCFKPpM8jt88E24FU1a0D0xF1HiXboZv6RjReEVVAgtZgwOgEyP6eWIGx3pquqpX1XlZIHhFxMbnA9uN0peoaguARcbRYR53OB7moQLUx/FSAn2e+Ixl658QSi4IsNMGeupR9IwBXs34wKmsESYuPFNyx8p28gMMHMn5YR83WNKnr7jxSJg6gBN4VL7dYHWMWqdfL1U7ymKgkTbu3E9CVLGcA5B+U4notecIQFIDU1enTPR0IjzLaQMa8NytXMIzU6gCFnUQ3xKDBKjTKqbxJnF0wPyb6qlJuY4dlR5yQ5P8/rg1kHWmKdRv92ymecGZAws5bUubrpqAASnTBJ5IAojrsTa2DfDc8jB1mGUgCR+YD+4woXO1FPLisro7MhpgH8jAqTO4i8j64EaCxmkrkQLfFfmJAg8jjpBBqQHak8baqSkj/mBx4MqiiAKY9KNP36YaE/I8Nod2Hqtmg8FiKdJWQAOU3Yi9iY6HBanmKWXU/dzUqlixIq02p6dELqXSJvMgWtPpgo+UVhcaxyPdU4HpivV4bR2KgG1zQp/zi+GiLImq2Wu4qVy9RQIZB3YCkkkJOoE2tfrjWjla1Omg7kFwCPEVgQsK0/mM6rW+IeePE4YpkJpN+Sqvt4WEY1bgFWxRwvroYf9SzhoXOGZYUM4lMudSkKWI2JUGOfXTOLg4U6LVJpHvKjlvjWyNJIgNupsTtcWxPX7IVtYqBwWkGSQF3nlEY3q8Nzaj4hP7tRiPoSMNENHhlVVmkGO0FCrEgFfDHeWBk/I+oL0aeYXLvS7qq6undKHEldeuWMkkqvh+kYDjL5tJLd7tvr8MeV4nGgy+ZVpRqrNzVoM/KpM4gKcE4FXAIIgDxOGcqahgwFYXUgR+jgHnMhmkWoDkyqM0lB47iYNmJi+LFfPZqyqtQMOUt/TUR85xCvG82gKM9UTYn8QmPUsMaBz7I0/GzBiJpiF6ePz+XtjqNPc45r9l/d9/XNP/hLIhh+bo0/zx0qlzxqM1rW5YXuN5dWqgsxHhX8wA3PXn74Ya3LAzP0CzyI2G49cTkQHo5KgDJ0noW8R9i5MDyGLjJTjdY5mRAHr0xZSk3Qe0f2xpVyWv47g8pt9N8TFVPugJ8L25eEkfMDGv3Mefuh+lsXTkrbkx1vjFQi5B9h/bEwCwql2VFLMsagE2m92IABi8TiR+Go6+Kiv+Ygf9s39sECqg6tN9iedtvM4x3eDpAkdT/bn7HEAb/Ymn4aKehIj1kLf5Yn7tlI1UkJ8wR8iFwYR+pafQf0GJL9R/wAv9ZxcXQeuKZW9EOQJADxJ8iYjFF8s9S9V6tMWinSFSoR5NUqakPLZRzvhirZMNyUeYH9NjipWyLATMgdDHzFpww0LoZZFtTrV0nkapj/kqAgegGNP9kVFkrXeTuz0qTH01KqtHvgiouZJI6Ek/SdserlaO4QKfKVk/wCWMQLnEuztesB3mZRtN11UyYne7VWI5fLBHg+RzVGmaWqjUGgin+DDKTN9U3F+YPLF/LcPi2rmTeoxJnqGnFgCoLbjzj+2AXMl2aenmO8cak0KDBEllW9iY3J+WNs3wqoGOhVALTqPIadJ8pBvHkbjDFNSRKgL6wZ9hfG7ox/M0Dly+R3+eLhrXL007tA9FKrKoBcxcjnJFyeuN0ytM3NFk/hqcvSQPpjxEIt/Qfr649Ezy8hacQRPwKk1xqHq5A+UkE+oxIOCgCFZwD+y4X6CnGLEPHP3xsiv6en+uCBmc4IzLB7x+UBqRkdD3lIYq5XIVKY0xVRI5lLei0wF+uGNXYfmP69cbd83lgpZqZWpMfeKsdDSB+qsTiNMrpP+O0b6XpQPnpk+5OGrvRzUY8mmeUfP+mLhpYql9hUpGSLaWPvqXl7Y0dak2FJwALBjPsXQT6E4aTQpmwP1/viNuGoeh9VBww0l5ms4P/wSQOYFKPpUt8sVXz1D4qmT0nn+CzGfVFI+ow/Dh+nbT8oxC+VcH4J85/Rww0J7HcRoVKlVaaFGCgkGk1MxPVrHDZR54H5CiVJJWLdI54IUueLxSta3LFetv7YnrDbENQGbDFvqRFqxk497tuhx7oPTAeDGGBiQKemM0npgI7eWM7pemNwh6Y3CnEVoEHQY97pemNtJx7pxUYBjNI6Y9AOPdPlgK9bKo4uPcEg/Qi3lii/CSCStQkGTpbb5i4HlgvGPCuADNk1HxT+vPGwysfC31wWZJ3GKlbLsLoCfLbExVYDTEr7z/THv3pALxiOolQ2NFvYj++I34c26q6/Ln1FwcUbNm6fl7iMZU4io/Lby/wDBxBU4bUI8Mz+9SWfmCMU34Pmd9KsP2WRf74AiOMJ+bw+cH+gx7/tin/xF+cfzGBScJr7Ggseg/wD6xK3B2O+W9YN/q2AuHtFlwYNS/kCf5DEicby7bVB72/ngcOy1M70vchZ/8++Jv/S9MfDTC/L+YIwBI52nE6hHlB/kcepnaZMA3wHr9nahEAAj1A/XzxEOAVQunugfdT8pbfEwHnren69RiJao/KwO21j/ADwvVOAV4hadRP8AMn8te+I37J5moLuy/wAUT9GM/TDFNX3ioNpPlIn648biLDcEeqg/9pwoDsjnlHgrHzGoj+TjE9Ps9xBRIqNP/wB23yJOJlPhu4dnzVJBAsJtI+hwRpc8AOz2VzNNnNcG6iDqU3n9284P0ueNcWaxhOPNOMxmNMvdOM04zGYK90487sY9xmAzuxjO7GPcZgjXT6420YzGYDNGM04zGYDO788Z3fmcZjMBmjzOPI9ce4zAZpxmnGYzBXugYzQMZjMVGaB+jjzQP0cZjMFZ3Y/Rx5oH6OPcZiDzQP0cZoH6OPcZgPNA/Rxmgfo49xmA80D9HGaB+jj3GYDzQP0cYojGYzFH/9k=
http://play4967.ppcugdisosdm29.life/7455432343/?utm_campaign=bKMuT7EMVXU5Z6UvvSHONGlfu-yV43iC8T8uYixAFxs1&t=main9_3c620c823d1bb309fd&f=1