Imprimir
Edificio completo

Bodegas Dominus

Dominus Winery
  • 1995 - 1997
  •  
  • HERZOG, Jacques
  • DE MEURON, Pierre
  •  
  • Youtville. Napa Valley (California)
  • Estados Unidos
obras/26243_8.jpg obras/8900_8.jpg obras/8901_8.jpg obras/8892_8.jpg obras/8898_8.jpg obras/6748_8.jpg obras/26244_8.jpg obras/16564_8.jpg obras/26245_8.jpg obras/9017_8.jpg obras/16567_8.jpg obras/8899_8.jpg obras/25966_8.jpg obras/16562_8.jpg obras/16563_8.jpg obras/16566_8.jpg obras/16565_8.jpg

Hay edificios que te impactan por su tamaño o su forma… y luego está Dominus, que te gana, por lo contrario. Es tan simple y silencioso, que parece más paisaje que arquitectura, y justamente por eso me encanta.


 No hay nada espectacular en el sentido tradicional; solo un volumen alargado, de piedra y metal (gaviones, agregados a las paredes), que se pierde entre los viñedos de Napa. Pero cuando lo miras bien, te das cuenta de que cada detalle está pensado... una piel rugosa que protege, que respira, que deja pasar la luz en pequeñas dosis, como si el edificio mismo se tomara su tiempo para madurar, igual que el vino que guarda.


 Lo que más me inspira es esa sensación de equilibrio, no impone nada, no quiere ser protagonista, está ahí, haciendo su trabajo, en silencio, y aun así transmite fuerza, recordando que la arquitectura puede ser poderosa sin ser ruidosa.


 Al pensar en este edificio dan ganas de diseñar con más calma, de dejar que las cosas sean lo que son, que la forma nazca de la necesidad y no del capricho.


Para mí, Dominus es eso: la prueba de que la belleza está en la honestidad. 


Andrea PEREZ MIRAS


---


La bodega está situada en una ubicación excepcional en el valle de Napa (California). El cliente, el reconocido productor de vino de Burdeos, Christian Moueix, reconoció el potencial del terreno para producir uvas de calidad en comparación con muchos otros viñedos. A mediados del siglo XX ya se habían producido vinos de calidad excepcional. Después de diez años de replantación, Dominus alcanzó un nivel de calidad que reflejaba todo el potencial de la tierra. Así, en 1995, Moueix y su esposa, Cherise, le encargaron a Herzog & de Meuron que construyeran una bodega.


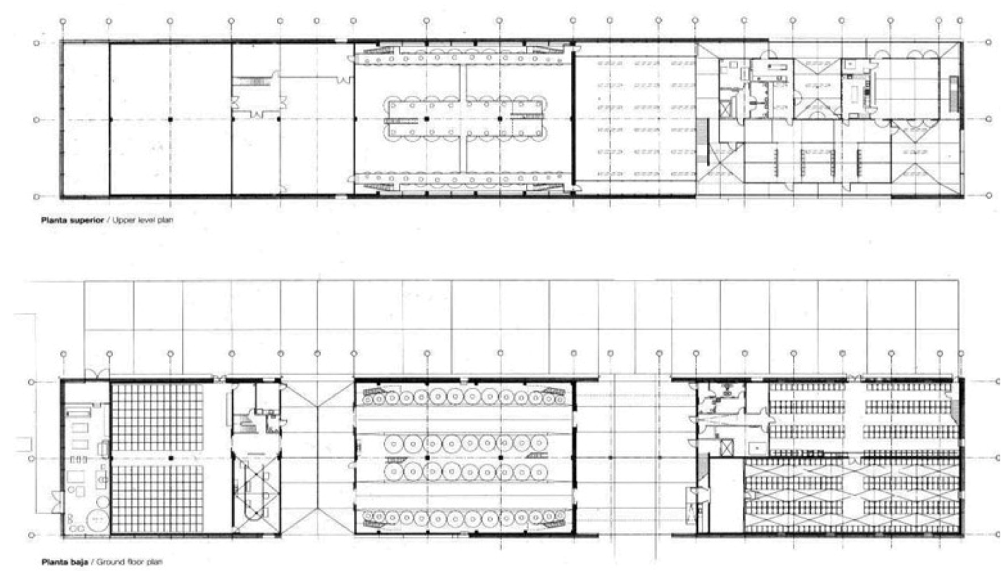
 El edificio se divide en tres unidades funcionales: la sala de tanques con enormes tanques de cromo para la primera etapa de fermentación, la bodega Barrique donde el vino madura en tinas de roble durante dos años y el almacén donde se embotella el vino, embalado en cajas de madera. y almacenado hasta que se venda. Se diseñó alojar estas tres unidades funcionales en un edificio lineal de unos 100m de largo, 25m de ancho y 9m de alto. El edificio se sitúa en el eje principal, el camino principal de la bodega, y se encuentra en medio de los viñedos. Las vides en California pueden crecer hasta una altura de más de 2m, de modo que el edificio esté completamente integrado en el contexto del viñedo.


Las unidades funcionales en la planta baja están separadas con pasillos cubiertos en el medio el camino principal del viñedo pasa por el más grande de estos. Este gran espacio cubierto sirve como un área abierta de recepción pública, donde se cruzan los caminos que unen todas las partes importantes de la bodega. Esta área accede a la bodega Barrique, la sala de degustación, las oficinas y terrazas de techo, las habitaciones del sótano y las enormes puertas de la sala del tanque. Los huéspedes son recibidos en la sala de degustación para degustar el vino. Una pared de vidrio ofrece una vista de toda la bodega llena de tinas de madera.


 El clima en Napa Valley es extremo: muy caluroso de día y muy frío de noche. Para afrontarlo se diseña una estructura que pudiera aprovechar estas condicionesFrente a las fachadas se colocan gaviones, agregados a las paredesforman una masa inerte que aísla las habitaciones contra el calor durante el día y el frío por la noche. Se eligió basalto local que varía de verde oscuro a negro y se combina perfectamente con el paisaje. Los gaviones se llenan más o menos según sea necesario para que partes de las paredes sean muy impenetrables, mientras que otros permiten el paso de la luz: la luz natural entra en las habitaciones durante el día y la luz artificial se filtra a través de las piedras por la noche. Se podría decir que el uso de los gaviones es una especie de cestería de piedra con diversos grados de transparencia, más como la piel que como la mampostería tradicional.


Eneko MANZANO


 

Subir