Inprimatu

Biblioteca Central Oodi

Helsingin keskustakirjasto Oodi
  • 2012 - 2018
  •  
  • ALA ARCHITECTS, Studio
  •  
  • Helsinki
  • Finlandia

La Biblioteca Central Oodi, inaugurada en 2018 en Helsinki, constituye uno de los ejemplos más representativos de la arquitectura contemporánea nórdica. Diseñada por el estudio ALA Architects, se erige como un símbolo de apertura, modernidad y acceso universal al conocimiento.


El edificio combina materiales tradicionales y modernos: la madera, característica de la arquitectura finlandesa, aporta calidez y conexión con la naturaleza, mientras que el vidrio y el acero generan transparencia y ligereza. Esta dualidad refleja la intención de integrar tradición e innovación, valores profundamente enraizados en la cultura finlandesa.


En el exterior, la biblioteca se presenta como una gran estructura ondulante. Su fachada curva de madera envuelve el volumen central, generando una sensación de movimiento y acogida. Los amplios ventanales permiten que el interior se comunique con la ciudad, transmitiendo la idea de un espacio abierto y democrático.


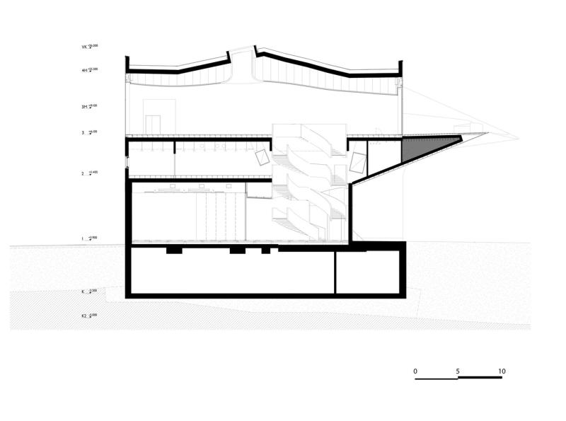
El interior se organiza en tres niveles con funciones diferenciadas: la planta baja como espacio dinámico de acceso y encuentro social, la planta intermedia con salas multifuncionales para actividades creativas, y la planta superior destinada a la sala de lectura. Esta última destaca por su diseño diáfano, bañado en luz natural, que crea un ambiente silencioso y propicio para la concentración.


No es únicamente una biblioteca en el sentido tradicional. Su carácter polivalente lo convierte en un centro cultural abierto, con zonas de trabajo colaborativo, talleres de creación digital, un cine, cafeterías y espacios para la infancia. De este modo, responde a las necesidades de una sociedad contemporánea, en la que la biblioteca no se limita a custodiar libros, sino que fomenta la interacción social y la innovación.


El significado va más allá de lo arquitectónico. Es un proyecto que encarna los valores de igualdad, participación ciudadana y acceso libre a la cultura. Su presencia en el centro de Helsinki, frente al Parlamento, simboliza el lugar fundamental que ocupa el conocimiento en la vida pública de Finlandia.


En definitiva, la Biblioteca Oodi constituye una síntesis entre funcionalidad, estética y compromiso social. Es un edificio que demuestra cómo la arquitectura puede trascender su dimensión material para convertirse en un motor de cohesión comunitaria y un referente de modernidad cultural.


Inés ARANA GUERRA

Igo