Inprimatu
Interior

Museo Nacional de Arte Romano en Mérida

  • 1980 - 1986
  •  
  • MONEO VALLÉS, Rafael
  •  
  • Mérida (Badajoz)
  • España
obras/36069_8_33010202.jpg obras/36069_66.jpg imagenes/3970_1_33010215.jpg imagenes/3939_1.jpg imagenes/3971_1_33010216.jpg imagenes/3951_1.jpg imagenes/3948_1.jpg

CURTIS William. J. La arquitectura moderna desde 1900. Edit. Phaidon. Hong Kong, 2006. 


Págs.617-633. El Museo Nacional de Arte Romano en Mérida, España (1980-1986), obra de Rafael Moneo, juntaba ruinas reales con otras metafóricas, remontándose hasta la anatomía estructural de la arquitectura antigua y aludiendo a ciertas continuidades de la tradicional española. Mérida se encontraba en el cruce de dos importantes vías romanas. En los comienzos del Imperio se habían construído en ella teatros, acueductos y un largo puente. El museo estaba separado del teatro y el anfiteatro por una vía, y se levantaba encima de los restos excavados de la ciudad antigua, que eran visibles en el sótano. El proyecto se apoyaba en la repetición insistente de unos muros paralelos de hormigón recubiertos de ladrillo romano, que estaban perforados por arcos de distintos tamaños y rematados por lucernarios industriales y cubiertas de teja. El resultado era una sala noble y espaciosa, un cruce entre una fábrica de principios de siglo y algo más antiguo. La perspectiva de los arcos principales, con las filas de soportes en escorzo, centraba la atención en unas estatuas de mármol blanco, fragmentos antiguos y el objet trouvé de una columna clásica. Las distancias era difíciles de calibrar y el efecto de ilusión espacial quedaba dramatizado por un rayo de luz que caía sobre el muro de fondo, procedente de una fuente invisible. A uno de los lados, unos forjados de hormigón cortaban la estructura principal proporcionando niveles superiores de menor escala para la exhibición de joyería, alfarería y mosaicos. Las ventanas, las puertas y las barandillas eran de acero tosco. Los muros aparecían en el exterior como una hilera de contrafuertes en escorzo. La entrada estaba marcada por un arco en el ala lateral. Para los puristas de la estructura, los arcos de hormigón camuflados del Museo de Mérida resultaban inconvenientes, pero la intención de Moneo era evocar asociaciones de ideas con las construcciones antiguas más que expresar las realidades constructivas de su propia época. El edificio se apoyaba en una serie de analogías y traslaciones en torno a los temas básicos de la ingeniería romana y la repetición de arcos; aludía a los acueductos, las termas, los puentes y los contrafuertes situados bajo los teatros antiguos. En este caso el museo se concibió como una caja de resonancia de la historia local que también se hacía eco de fuentes más remotas y de los restos arqueológicos de la región. Moneo evitó las referencias obvias al clasicismo académico, así como la imaginería gráfica superficial de la arquitectura posmoderna, estableciendo para ello un riguroso control formal y tectónico, y oscilando adelante y atrás entre lecturas abstractas y figurativas de la tradición. La geometría del museo estaba girada unos cuantos grados con respecto al trazado de la calle romana excavada que pasa por debajo, y esto acentuaba el contraste entre lo nuevo y lo viejo. En estas regiones subterráneas, los arcos eran más compactos, más numerosos y menos regulares que arriba; estaban bañados por una débil luz de ultratumba. El resultado era como una cisterna antigua, aunque también venían a la mente Kahn y Piranesi. El enfoque de Moneo era ecléctico en todo el sentido de la palabra; tomaba imágenes e ideas de varios periodos y las fundía o las juntaba en un collage .


El Museo Nacional de Arte Romano no encajaba fácilmente en su entorno inmediato, sino que aludía a un contexto en un sentido más amplio. La lectura de un lugar y sus capas de memoria implicaba una excavación imaginativa de las fases de la civilización del pasado. Había incluso reminiscencias de la Mezquita de Córdoba, del siglo VIII, una sala de columnas que en sí misma combinaba la herencia de los acueductos romanos con el espacio metafísico del Islam. El edificio de Moneo aludía a un tipo de continuidades profundas de la arquitectura española (los ‘invariantes’, como los había denominado una generación anterior) que había interesado a los arquitectos de este país a comienzos del siglo XX. La sala con arcos de planta repetitiva y modular era un tipo recurrente en la arquitectura española, evidente tanto en las atarazanas góticas de Barcelona como en la construcción industrial vernácula de finales del siglo XIX (véase el capítulo 8). Moneo tomó el tipo y lo reinterpretó con un lenguaje que se apoyaba en la anterior arquitectura moderna española y también enlazaba con las cuestiones planteadas por el neorracionalismo: limó y ajustó el tipo para adaptarlo a propósitos, el contexto y las intenciones expresivas de un edificio de finales del siglo XX. En 1978 escribía de un modo revelador: «En el proceso de diseño se manejan los elementos de una tipología -los elementos de una estructura formal- en la situación concreta y precisa que caracteriza a la obra singular, única.»


---


FRECHILLA CAMOIRAS Javier, RAFAEL MONEO Rafael., “Museo de arte romano, Mérida”


en Revista Arquitectura. COAM.  Colegio Oficial de Arquitectos de Madrid.


Págs.23-45. "Construir sobre lo construido, construir sobre un suelo densamente ocupado por ruinas, es la tarea encomendada.La alusión directa, inmediata y evidente a la civilización romana parecía poco menos que inevitable para construir en aquel solar un museo. Utilizar los mismos medios de construcción, servirse de idénticas técnicas, siempre pareció el modo más respetuoso de convivir con las ruinas existentes.


 Ante la disyuntiva de replicar e insistir en las orientaciones definidas por las construcciones romanas o reconocer las trazas de la Mérida contemporánea, fueron estas últimas –las directrices perpendiculares a la mencionada calle José Ramón Mélida– las que prevalecieron.


 El nuevo museo venía a ser la recuperación de la continuidad perdida entre lo romano y la Mérida de nuestro días: el nuevo museo, por tanto, como episodio más reciente de lo que había sido la historia de aquel lugar. Lo que era tanto como decir la entera historia de la ciudad, la historia de Mérida, no tan solo de la Mérida romana. Pero el uso de los medios de construcción cuasi-romanos no excluyen que los mecanismos arquitectónicos sean contemporáneos, produciéndose así el contrapunto en el que, a nuestro entender, radica el atractivo del museo.


 "En tiempos donde tipo y trazado, ciudad y edificio, carác[1]ter y construcción, manera y estilo, popularidad y aris[1]tocracia, son los temas en los que se centra el interés de la arquitectura internacional, la construcción de un museo de arte romano es, a la vez, una ocasión y un reto para cualquier arquitecto. Nada hubiera sido más fácil y a la vez justificable que haber aprovechado la literalidad del encargo (en Mérida junto al teatro y al anfiteatro romanos) para justificar un despliegue figurativo donde la representación romana se hubiera hecho cargo del carácter del edificio, o si se quiere una clave más moderna, haber recurrido a cualquiera de las metáforas sobre el lenguaje clásico que con tanta asiduidad podemos contemplar en las arquitecturas de hoy."


---


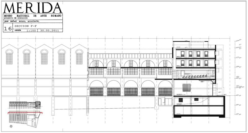
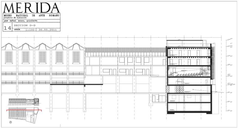
Este edificio juntaba ruinas reales con otras metafóricas, remontándose hasta la anatomía estructural de la arquitectura antigua. Mérida se encontraba en el cruce de dos importantes vías romanas. En los comienzo del Imperio se habían construido en ella teatros, acueductos y un largo puente. El museo estaba separado del teatro y el anfiteatro por una vía, y se levantaba encima de los restos excavados de la ciudad antigua, que eran visibles en el sótano. La forma general del edificio se basa en hacer evidente la solidez de la fábrica. Se han adoptado al pie de la letra sistemas de construcción romanos a base de muros y arcos de ladrillo.


 El acceso se realiza por un cuerpo autónomo que alberga en sus distintos pisos los servicios públicos del museo así como la administración. El edificio del museo está definido por la relación dialéctica entre la estructura de los muros y los recorridos que los van atravesando, configurándose en la planta baja un enorme vacío longitudinal, creado por una secuencia de gigantescos arcos de medio punto, que otorga el carácter monumental y emocionante al espacio interior. El proyecto se apoyaba en la repetición insistente de unos muros paralelos de hormigón recubiertos de ladrillo romano, que estaban perforados por arcos de distintos tamaños y rematados por lucernarios industriales y cubiertas de teja. El resultado era una sala noble y espaciosa, donde la perspectiva de los arcos principales, con las filas de soportes en escorzo, centraba la atención en unas estatuas de mármol blanco, fragmentos antiguos y objet trouvé de la columna clásica. Las distancias eran difíciles de calibrar y el efecto de ilusión espacial quedaba dramatizado por un rayo de luz que caía sobre el muro del fondo, procedente de una fuente de luz “invisible”A uno de los lados, unos forjados de hormigón cortaban la estructura principal proporcionando niveles superiores de menor escala para la exhibición de joyería, alfarería y mosaicos, con las ventanas, las puertas y las barandillas de acero tosco. La iluminación natural, se consigue de diversas maneras para lograr diversas atmósferas dentro de la homogeneidad espacial.


 Los muros aparecían en el exterior como una hilera de contrafuertes en escorzo. La entrada estaba marcada por un arco en el ala lateral.Para los puristas de la estructura, los arcos de hormigón camuflados del Museo de Mérida resultaban inconvenientes, pero la intención de Moneo era evocar asociaciones de ideas con las construcciones antiguas, más que explicar las realidades constructivas de su propia época. El edificio se apoyaba en una serie de analogías y traslaciones en torno a los temas básicos de la ingeniería romana y la repetición de arcos aludía a los acueductos, las termas, los puentes y los contrafuertes situados bajo los teatros antiguos. En este caso el museo se concibió como una caja de resonancia de la historia local que también se hacía eco de fuentes más remotas y de los restos arqueológicos de la región. Moneo obvió las referencias al clasicismo académico, así como la imaginería gráfica superficial de la arquitectura postmoderna, estableciendo para ello un riguroso control formal y tectónico, y oscilando adelante y atrás entre lecturas abstractas y figurativas de la tradición.


 La geometría del museo estaba girada unos cuantos grados con respecto al trazado de la calle romana que pasa por debajo y esto acentuaba el contraste entre lo nuevo y lo viejo. En estas partes subterráneas, los arcos eran más compactos, más numerosos y menos regulares que arriba; estaban bañados por una débil luz de ultratumba. El resultado era como una cisterna antigua, aunque también venía a la mente Kahn y Piranesi. El enfoque de Moneo era ecléctico en todo el sentido de la palabra, tomaba imágenes e ideas de varios períodos y las fundía o las juntaba en un collage.


 El Museo Nacional de Arte Romano de Mérida, no encajaba fácilmente en su entorno inmediato, sino que aludía a un contexto en un sentido mucho más amplio. La lectura de un lugar y sus capas de memoria implicaba una excavación imaginativa de las fases de la civilización en el pasado.


---


 


 

Igo