Imprimir
New Kensington

New Kensington

  • 1940 -
  •  
  • GROPIUS, Walter
  • BREUER, Marcel
  •  
  • Kensington (Pensilvania)
  • Estados Unidos

FRAMPTON Kenneth., Historia crítica de la  Arquitectura Moderna. Gustavo Gili. Barcelona, 1987.  


Pág.241-249. “El eclipse del New Deal: Buckminster Fuller, Philip Johnson y Louis I. Kahn 1934-1964”.


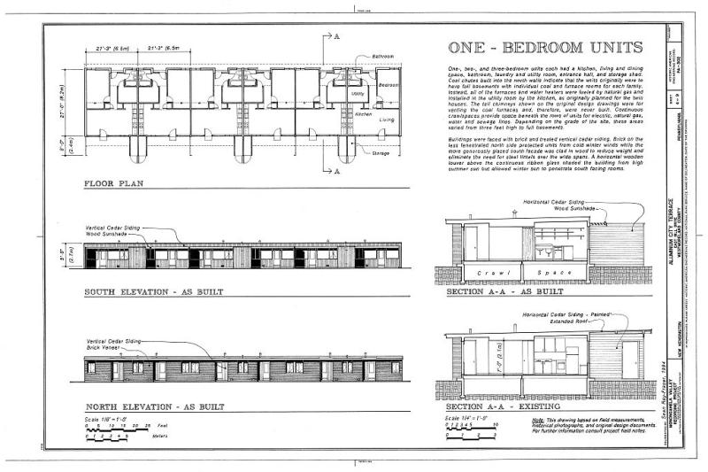
Las crisis economicas y politicas en la Europa de los años treinta y las medidas sociales del New Deal de Roosevelt aportaron a los Estados Unidos una intelligentsia de refugiados a la vez que unos extensos programas de reforma y asistencia social. En tanto que el Museum of Modern Art y la Universidad de Harvard desempeñarán los papeles principales en la asimilación cultural de esta migración, el gobierno federal facilitó la base infraestructural para las numerosas tareas de ayuda social que serían ejecutadas entre la Housing Act de Roosevelt en 1934 y la terminación de la segunda guerra mundial. Los más famosos proyectos de planificación y asentamiento del New Deal fueron la Tennessee Valley Authority y las Greenbelt New Towns de Clarence Stein, estas últimas realizadas después de 1936 bajo los auspicios de la Federal Resettlement Administration. A diferencia de los notables embalses, grúas desplazables y diques construidos en el valle de Tennessee, los asentamientos Greenbelt de Stein no fueron agraciados con obras de distinción arquitectónica. Desde este punto de vista, se consiguieron mejores resultados en los pueblos para obreros financiados en el mismo periodo por la Farm Security Administration, con un ejemplo típico en la comunidad agraria de adobe en Chandler, Arizona, construida en 1937 según diseños de Vernon de Mars. Se alcanzó un nivel de vivienda igualmente eficiente y elegante en otros asentamientos financiados por similares entidades gubernamentales, entre ellos el poblado de New Kensington, Pennsylvania, construido en 1940 según planos de Walter Gropius y Marcel Breuer, y Channel Heights, en San Pedro, Los Ángeles, diseñado en 1943 por Richard Neutra. Una obra inexplicablemente desmañada, construida bajo unos auspicios similares, fueron las viviendas Carver Court en Coatesville, Pennsylvania, diseñadas en 1944 por George Howe, Oscar Stonorov y Louis Kahn. Esta obra parece tanto más sorprendente cuando se piensa que Kahn ya había demostrado su capacidad trabajando para Alfred Kastner en las Jersey Homesteads de Hightstown, Nueva Jersey, entre 1935 y 1937.


Sin contar su mérito arquitectónico, todas estas obras patentizaban la presencia de una ‘Nueva Objetividad’ en los Estados Unidos. El hecho de que este movimiento no fuese, ni mucho menos, tan consciente de sí mismo ni tan polémico como su contrapartida en Europa debiase a que no existía una base ideológica comparable. En cualquier caso, el ‘movimiento’ había de ser más sensitivo respecto a la cuestión de la aceptación popular y en este aspecto su antimonumentalidad procedía directamente de su empleo de materiales nativos y de su respuesta a las alternativas de topografía y clima.


 

Subir