Imprimir
Viviendas Gifu Kitagata en Motose

Viviendas Gifu Kitagata en Motose

  • 1994 - 1998
  •  
  • NISHIZAWA, Ryue
  • SEJIMA, Kazuyo
  •  
  • Motose
  • Japón

MONTANER, Josep María., Sistemas arquitectónicos contemporáneos. Gustavo Gili. Barcelona, 2008. 


Págs.. 190-214. “Diagramas de energía


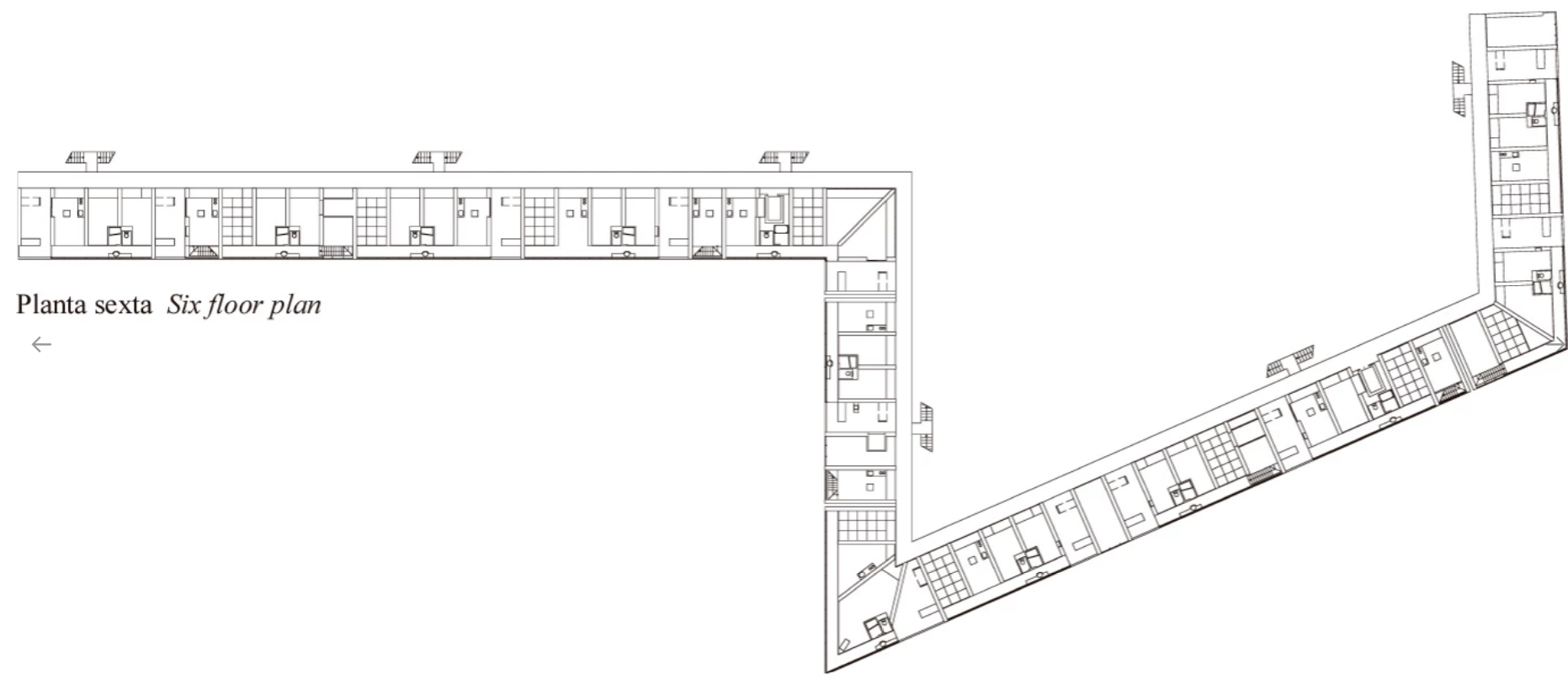
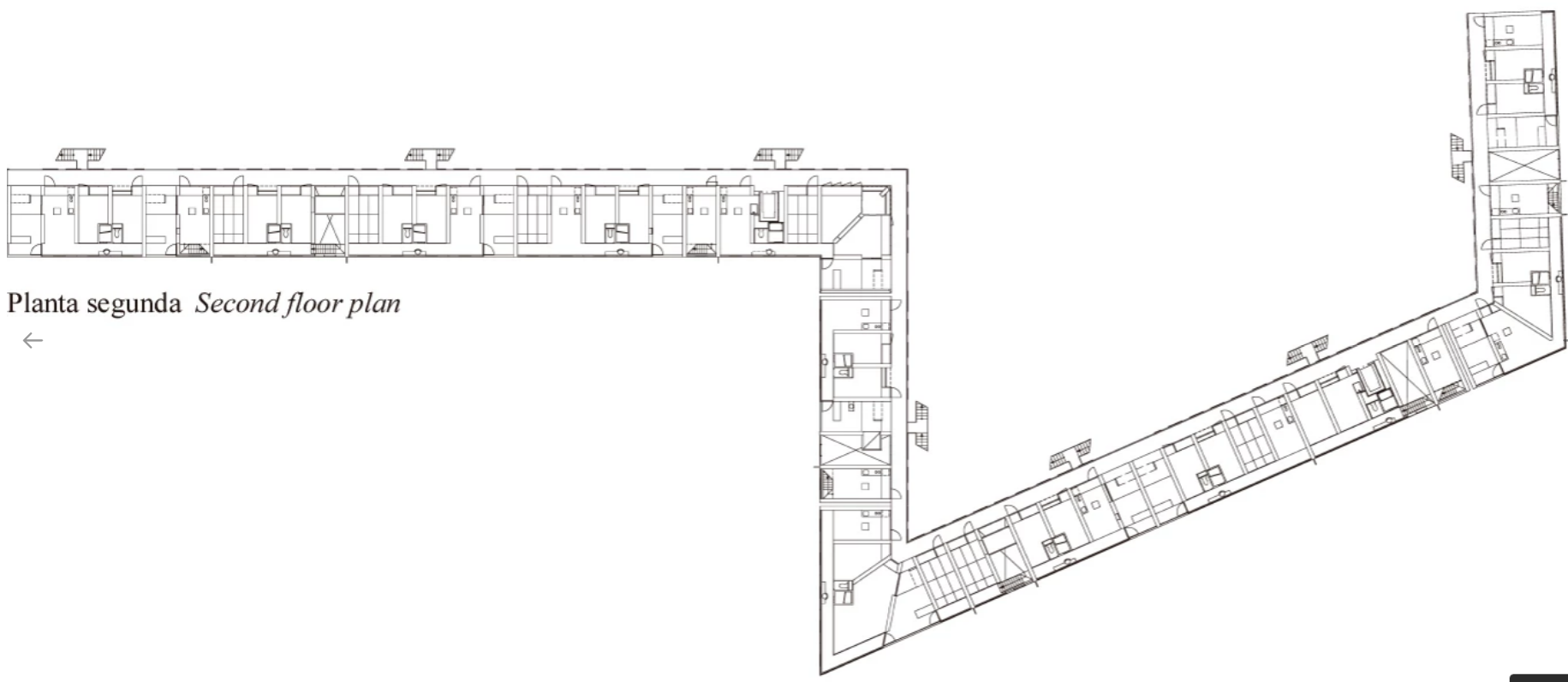
Un punto culminante de esta búsqueda de una arquitectura en la que diagrama y espacio coinciden en toda su transparencia y claridad son las viviendas Gifu Kitagata en Motose (1994-1998). Kazuyo Sejima y Ryue Nishizawa (antiguo colaborador de Sejima con el que forman el grupo SANAA, Sejima And Nishizawa Architects Associated) han planteado estos apartamentos de alquiler como suma de pequeñas células individuales o módulos, la mayor parte duplex, que se van combinando y adicionando de forma libre en sección, con el objetivo de amoldarse a los hábitos residenciales japoneses. Cada célula de vivienda consta de varios módulos de 3 X 4 m, es decir de 12 m2, que pueden servir de habitación o de cocina comedor. Cada una de las unidades dispone de una terraza propia. Los pasillos y las escaleras comunitarias en la fachada posterior son los elementos que dan acceso a las piezas. En los dúplex se circula por una escalera privada que está en la franja de la fachada sur o principal. Se explora así una nueva experiencia de intimidad contemporánea que no se consigue con muros gruesos y pesados, sino con franjas livianas de espacios de transición en cada fachada.


La arquitectura de Kazuyo Sejima es modular y, a la vez, diagramática: no propone una forma definida como resultado, sino una modulación. Su obra parte del programa, se convierte en organigrama y éste en un diagrama que se mantiene como base esencial del proyecto. En toda su obra existe esta voluntad de refundar la arquitectura a partir de una fidelidad matemática al programa.

Subir