Imprimir

Cité Manifeste

  • 2004 -
  •  
  • LEWIS, Duncan
  • LACATON, Anne
  • BAN, Shigeru
  • NOUVEL, Jean
  •  
  • Alsace
  • Francia

MONTANER, Josep María., Sistemas arquitectónicos contemporáneos. Gustavo Gili. Barcelona, 2008. 


Págs.. 190-214. “Diagramas de energía”


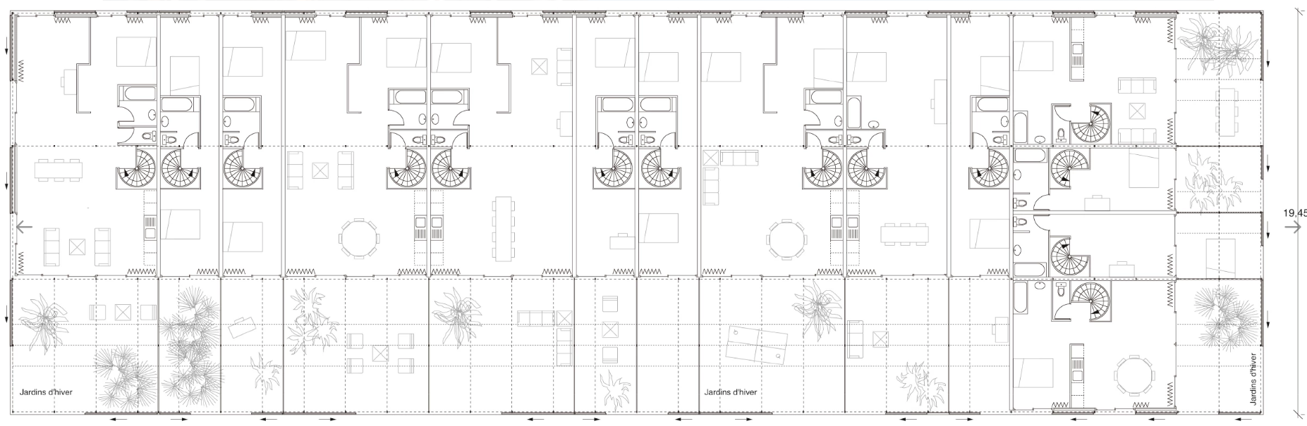
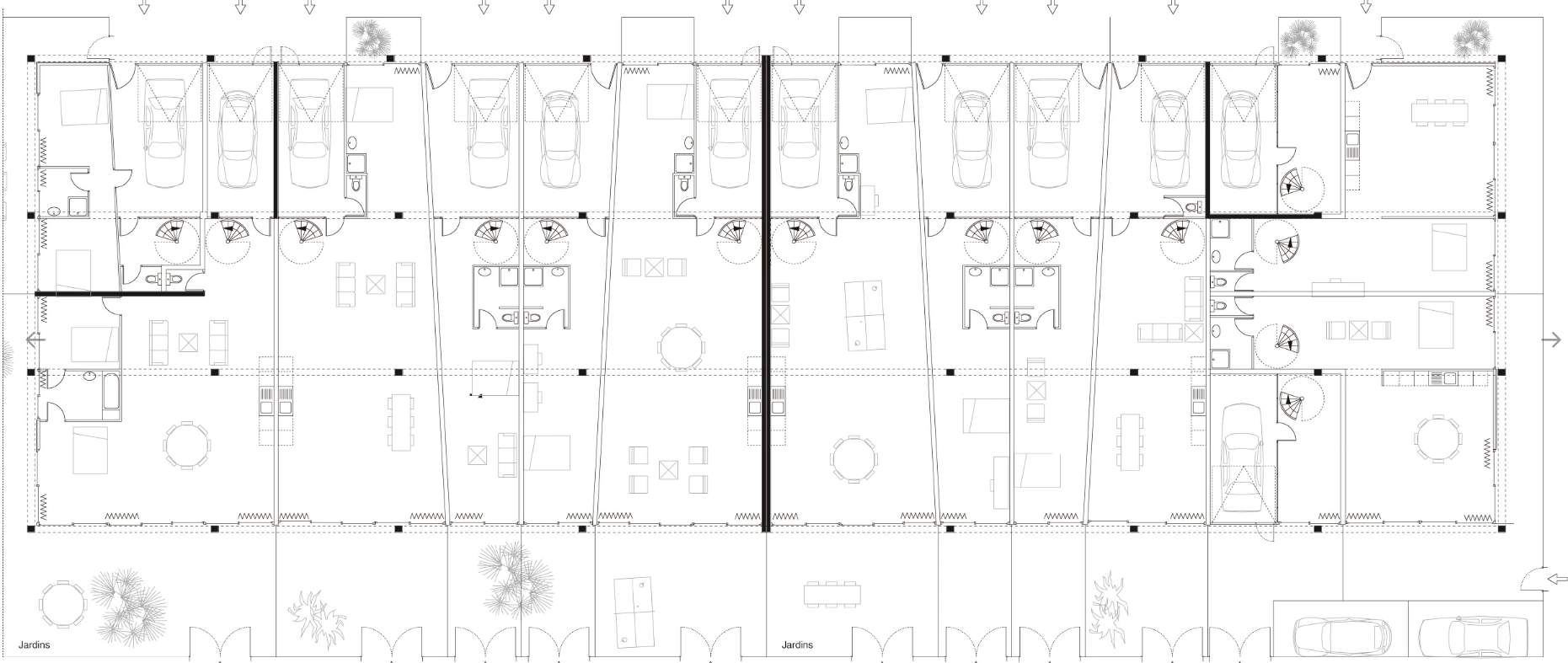
Arquitecturas ambientales. Duncan Lewis, asociado al equipo Block, ha intervenido también en el conjunto de viviendas de la Cité Manifeste en Mulhouse(2003-2004), realizado para celebrar los 150 anos de la famosa operación de vivienda obrera promovida por la Societé Multiousienne des Cités Ouvriéres. Junto a las viviendas de Anne Lacaton y Jean-Philippe Vassal, de Shigeru Ban y de Gastines, de Poitevin y Reynaud y de Jean Nouvel, las viviendas de Duncan Lewisdestacan por unos núcleos centrales realizados con estructura ligera y rodeados de vegetación, que pueden ir creciendo y transformándose continuamente hasta que el propio proyecto desaparezca por las ampliaciones que hayan realizado los usuarios y por la naturaleza que haya ido brotando y creciendo alrededor.


----

Subir