Centro Vasco de Arquitectura
Euskal Herriko Arkitektura Ikerkundea
https://arquitecturaviva.com/obras/museo-madinat-al-zahra-campo-arqueologico-1
Juego de luces en pasillos https://arquitecturaviva.com/obras/museo-madinat-al-zahra-campo-arqueologico-1
Interior del museo https://arquitecturaviva.com/obras/museo-madinat-al-zahra-campo-arqueologico-1
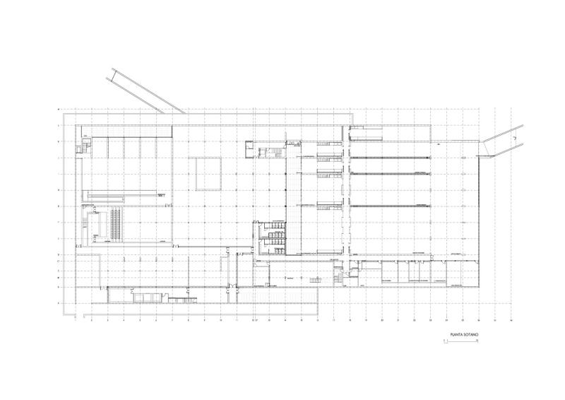
Areas como salas de proyección de obras, sanitarios, jardines interiores https://arquitecturaviva.com/obras/museo-madinat-al-zahra-campo-arqueologico-1
https://divisare.com/projects/16946-nieto-sobejano-arquitectos-museo-y-sede-institucional-madinat-al-zahra
https://www.archdaily.mx/mx/02-248510/museo-madinat-al-zahara-nieto-sobejano-arquitectos
https://visitamedinaazahara.com/el-gran-portico/
Presentación del proyecto Kuchu no Hako., 2015