Imprimir
CURTIS William. J. La arquitectura moderna desde 1900. Edit. Phaidon. Hong Kong, 2006. 3ª edición en español. 1ª edición 1986 (edición original 1982)

Johnson Wax Building Company

  • 1936 - 1945
  •  
  • WRIGHT, Frank Lloyd
  • Ampliación   1943 - 1950
    El mismo F.Ll. Wright lleva a cabo una ampliación del edificio construido entre 1936 y 1939, realizando un laboratorio de investigación junto al antiguo edificio.
  •  
  • Racine (Wisconsin)
  • Estados Unidos
imagenes/10301_1_36010259.jpg imagenes/3571_1.jpg imagenes/10300_1_36010258.jpg obras/6432_8.jpg obras/6433_8.jpg imagenes/3536_1.jpg obras/7116_27.jpg imagenes/3531_1.jpg imagenes/3546_1.jpg obras/7116_53.jpg obras/7116_55.jpg imagenes/3539_1.jpg obras/7116_46.jpg imagenes/10291_1_36010246.jpg imagenes/3547_1.jpg imagenes/3529_1.jpg obras/7116_25.jpg obras/7116_30.jpg imagenes/3537_1.jpg obras/7116_26.jpg obras/7116_8.jpg obras/7116_32.jpg obras/7116_48.jpg obras/7116_28.jpg imagenes/3532_1.jpg obras/7116_49.jpg imagenes/3538_1.jpg obras/7116_57.jpg imagenes/3543_1.jpg obras/7116_47.jpg imagenes/3549_1.jpg obras/7116_58.jpg obras/7116_52.jpg imagenes/3540_1.jpg obras/7116_51.jpg imagenes/3544_1.jpg obras/7116_29.jpg obras/7116_31.jpg

BROOKS PFEIFFER Bruce. Frank Lloyd Wright 1876-1959. Construir para la democracia


Edit. Taschen. Colonia, 2006.


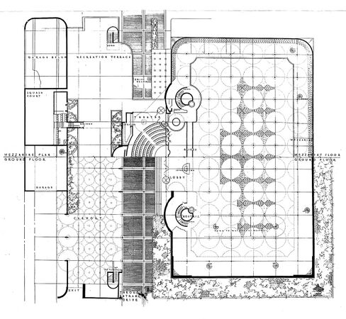
p.57 Cuando el nuevo edificio de oficinas de la S.C. Johnson and Son Company abrió sus puertas, después de tres años de construcción, causó inmediatamente senación en el mundo entero. En su número del 8 de mayo de 1939, la revista Life lo caracterizaba con comentarios como el siguiente: "Espectacular como la más ostensota escenografía de Hollywood, representa sencillamente la respuesta de un genio creativo al problema de diseñar el edificio más funcional y mas confortable, y también el más belloposible, para los ejecutivos y empleados de Johnson Wax". El edificio fue construido en una zona industrial, por lo que Wright decidió crear nuevamente un espacio herméticamente cerrado, con la luz cenital, como ya lo habia hecho en el edificio Larkin. En la gran sala de trabajo se eleva un "bosque" de columnas de hormigón, finas y blancas, que se abren en la parte superior formando el techo. En los espacios entre los circulos se encuentra situala la iluminación de tubos de cristal. En los ángulos, allí donde habitualmente las paredes se encuentran con el techo, las paredes terminan antes de llegar al techo, dejando espacio para encastrar igualmente tubos de cristal, que conectan con la luz cenital. La entrada se encuentra, dentro del complejo, a un lado de la entrada de vehículos, que tiene un garaje cubierto en la otra cara. El mobiliario, fabricado por la firma Steelcase, fue especialmente diseñado para este edificio. El tono marrón rojizo de los ladrillos se utiliza también en los suelos de hormigón; los ornamentos en piedra blanca y las columnas de hormigón forman un sutil contraste.


Pág.66-67. Cuando la S.C. Johnson & Son Company quiso ampliar sus edificios de Racine con unos laboratorios de investigación (1943-1950), muchos de los empleados pensaron que el proyecto podria ser realizado por cualquier ingeniero competente. Sin embargo, Herbert F. Johnson, quien en 1936 había dado a Wright el encargo de construir el edificio de oficinas, se dio cuenta de que toda construcción que se hiciera al lado de este edificio tendría que estar en consonancia con un especial carácter. "Yo habñia visto ya muchos edificios angulosos y planos que se denominaban laboratorios", escribió Wright, "las conducciones, corriendo por todas partes, con un pasillo circular para todo el mundo". Su proyecto consistió en catorce pisos: sobre cada uno de los siete con planta cuadrada, uno intermedio de planta circular. Toda la superficie exterior del edificio consta de tubos de cristal, como el edificio de oficinas contiguo, con una plancha de cristal insertada en el espacio interior para un mayor aislamiento. "Me pareció una solución natural y este laboratorio orientado al sol, que ahora denominamos "Heliolab", comenzó a cobrar vida, parecía respirar, ofreciendo espacios de trabajo maravillosamente soleados y directamente conectados. Desde el gigantesco pilar central del edificio, las diferentes plantas sobresalen como las ramas de un árbol, ofreciendo la suficiente distancia vertical para los direrentes departamentos. Como en el sistema celular de un tronco de árbol,  los sistemas de suministro y las numerosas conducciones de entrada y salida del laboratorio suben y bajan hasta un dispositivo central de alimentación". Los cimientos de hormigón armado para el núcleo central se denominaron "raíz pivotante" y se basan en una idea  propuesta en 1929 por Frank Lloyd Wright para la St. Mark´s Tower de Nueva York. La misma "raíz pivotante" se volvería a utilizar en 1952, en la H.C.Price Tower en bartlesville, Oklahoma. La torre queda liberada de todos los elementos exteriores de soporte, levantándose grácilmente sobre un área de jardín y fuentes, mientras que un amplio espacio a tres lados ofrece suficiente superficie de aparcamiento.


---


CURTIS William. J. La arquitectura moderna desde 1900. Edit. Phaidon. Hong Kong, 2006. 


Págs. 305-327“La naturaleza y la máquina: Mies van der Rohe, Wright y Le Corbusier en los años 1930”


El otro tour de force de Wright a mediados de la década de 1930 fue el centro administrativo de la compañía Johnson Wax en Racine (Wisconsin). En este caso, la situación era completamente distinta: el edificio debía contener oficinas y situarse en un solar llano dentro de un entorno urbano algo desagradable. A diferencia de los administradores de las empresas gigantescas e Impersonales que por entonces estaban comenzando a dominar la vida norteamericana, los Johnson pensaban en su organización como una especie de extensa familia bajo un benévolo patriarcado. Wright captó esto enseguida e intentó formar una cumunidad cerrada sobre sí misma que fomentase compañerismo al tiempo que reflejaba la jerarquía de la firma. El edificio administrativo se proyectó como un gran rectángulo sin ventanas, recubierto de ladrillo e iluminado desde arriba por un techo acristalado y unos ventanales altos; unas plataformas estaban suspendidas hacía dentro desde los bordes y daban a una sala de doble altura.


Este espacio luminoso y de buena escala estaba articulado mediante una retícula de esbeltos soportes fungiformes de hormigón, y estaba destinado principalmente a oficinistas y secretarias, mientras que la dirección estaba situada en los niveles superiores, junto a las plataformas. El presidente y los altos ejecutivos se acomodaban en una construcción más alta, visible al exterior como dos formas de zigurat simétricas y redondas. Desde ahí se podía observar la sala hipóstila de soportes troncocónicos. Un puente daba paso a las zonas de investigación de la empresa, a las que más tarde Wright añadiría una torre acristalada de laboratorios. Las de Johnson Wax no eran unas oficinas corrientes; se trataba de una máquina colectiva en la que las relaciones sociales se idealizaban un nítido diagrama de regulación y cooperación institucional. Si había algún modelo para este edificio en la visión urbana global de Wright, eran los pequeños centros fabriles regionales propuestos los dibujos de la Broadacre City.


Los exteriores del edificio de la Johnson Wax tenían esquinas curvas a la manera de ciertos trenes y objetos domésticos aerodinámicos de estilo moderne realizados por el diseñador industrial Raymond a principios de la década de 1930. Los coches entraban majestuosamente bajo la puerta cochera y luego giraban hacia el aparcamiento cubierto, donde se acentuaba el dinamismo de las columnas fungiformes con remates a modo de discos. Tal vez estos toques revelasen el intento deliberado por parte de Wright de diseñar en una moda 'populista'


La cualidad aerodinámica continuaba en el interior con la atenuación horizontal de las bandejas y los parapetos, y con detalles como la iluminación integrada, hecha con los mismos materiales que los tubos de ensayo de los laboratorios y que semejaba haces de bambú de vidrio. Pero la atmósfera del interior está más profunda que los brillantes efectos superficiales: sin ser autoritaria, sugería estabilidad y formalidad; en contraste con el exterior algo severo, resplandecía con calidez y luz. La retícula estructural contradecía el monótono carácter repetitivo de tantas oficinas comerciales; cada columna era elegante y delicada; en conjunto, las filas de figuras levemente cónicas, con sus remates circulares florando como nenúfares en una superficie translúcida, creaban una especie de mundo subacuático.


Wright desdeñaba los valores representados por la mayor parte de los edificios comerciales (la especulación, la estridencia, la uniformidad dela colmena) y trataba en cambio de modelar espacios de cierta riqueza en los que la vida, el trabajo y el arte pudiesen mejorarse mutuamente. La prueba del éxito del edificio estaba en que los empleados decidían quedarse allí después del trabajo, como si fuese un oasis frente al caos y la depresión económica del mundo exterior.


Las superficies pulidas de vidrio y metal, elegidas deliberadamente pensando en las ceras que producía la compañía, se cuidaban generosamente y se mantenían siempre relucientes e inmaculadas.


Al igual que la Casa de la Cascada, el edificio de la Johnson Wax era superficialmente distinto de la arquitectura anterior de Wright; a un nivel más profundo, no obstante, su organización también estaba enraizada en sus experimentos anteriores. La genealogía incluía  el edificio Larkin, 1902-1906 (Otra ' catedral del trabajo' introvertida y simétrica) ; el Templo dela Unidad, 1905-1908 (en el que dos volúmenes principales colocados axialmente tenían también la entrada en la pieza intermedia que los unía); el hotel Imperial de Tokio, 1912—1923 (en el que la cimentación a prueba de terremotos anticipaba el principio de los soportes fungiformes); y un proyecto para el edificio del Capital en Salem (Oregón), 1931-1932 (donde se había previsto una retícula estructural similar)- Probablemente, la imagen que tenía Wright de la sala de columnas estaba en deuda con las salas hipóstilas del antiguo Egipto; asimismo, sus columnas inspiradas en temas naturales pueden estar basadas en los soportes papiriformes y lotiformes de los mismos prototipos ; sin duda Wright conocía las láminas de la de Owen Jones, que investigaban los paralelismos entre la estructura arquitectónica y las  formas de las plantas. El arquitecto tuvo que demostrar a sus aprensivos clientes que las esbeltas columnas podían soportar los esfuerzos previstos, construyendo para ello un modelo a escala natural y apilando sobre él grandes cargas.


Este experimento sirvió para confirmar que Wright tenía los conocimientos prácticos de ingeniería necesarios para aplicar su sentido estructural intuitivo.


En la década de 1940 la organización Johnson Wax decidió expandirse y construir una torre de laboratorios, que también fue encargada a Wright. Éste adaptó y fundió la idea de la columna fungiforme con las necesidades del programa, situando las instalaciones en el núcleo central y los laboratorios en bandejas en voladizo con balconadas intermedias de menor anchura. El resultado fue un elegante edificio de esquinas redondeadas, envuelto por un vidrio que refractaba la luz solar, en el que los forjados principales se marcaban al exterior como bandas horizontales.


Aunque la torre de la Johnson Wax tenía problemas prácticos debido a que oscilaba ligeramente con el viento, representaba un manifiesto sobre la naturaleza del edificio en altura: un concepto reñido con la fórmula caja/estructura/retícula. Aquí estaba una vez más la analogía con el árbol, con el tronco central, la raíz profunda y las ramas extendidas.


---


FRAMPTON Kenneth., Historia crítica de la  Arquitectura Moderna. Gustavo Gili. Barcelona, 1987.  


Pág.188-193.“Frank Lloyd Wright y la ciudad no aparente, 1929-1963”


En 1928, Wright acuñó el término “Usonia” para denotar una cultura igualitaria que surgiría espontáneamente en Estados Unidos. Con él quería dar a entender, según parece, no sólo un individualismo de origen rural, sino también la realización de una forma nueva y dispersa de civilización semejante a la que había hecho posible recientemente la posesión masiva de automóviles. El coche entendido como el medio de locomoción “democrático” que iba a ser el deus ex machina del modelo anti urbano de Wright: su concepto de Broadacre City, en la que la concentración de la ciudad del siglo XIX debía distribuirse sobre una red formada por una malla agraria regional (ya anticipada en la propuesta presentada en 1913 al concurso del City Club de Chicago para una parcelación en las afueras de la ciudad). La primera vez que habló en contra de la ciudad tradicional fue en la última de las citadas conferencias en Princeton University, que comienza: “¿Es la ciudad una forma persistente de enfermedad social cuyo resultado es el destino que todas la ciudades han encontrado?”Una de la ironías del siglo XX es que Broadacre City se aproximaba másque ninguna otra forma de urbanismo radical a los preceptos centrales del Manifiesto comunista de 1848, que defendía “la abolición gradual de la distinción entre el campo y la ciudad mediante una distribución más equitativa de la población sobre el territorio”.


No obstante, los primeros edificios proyectados por Wright para esta nueva cultura “usoniana” –la torre de viviendas St. Mark y la sede del diario Capital Journal, ambos de 1931-tenían un tono más urbano que agrario. Hechos realidad finalmenteen la torre Price (1952-1955) en Bartlesville, Oklahoma, y en el edificio administrativo de la compañía Johnson Wax (1936-1939) en Racine, Wisconsin, estos dos proyectos consistían en un sistema de voladizos en hormigón armado, envuelto todo él en una membrana cristalina. En el plano simbólico, encarnaban la polaridad esencial que había quedado patente en la obra de Wright ya desde la casa Martín y el edificio Larkin, de 1904: la asimilación fundamentalista de la construcción de la casa a los procesos de la naturaleza, y del lugar de trabajo a la idea del sacramento. Esta polarización iba a ser brillantemente reformulada durante el periodo usoniano de Wright en dos obras maestras de riqueza y generosidad sin igual: la casa de fin de semana para el señor Kaufmann –más conocida como Casa de la cascada-en Bear Run, Pensilvania, de 1936,y el edificio administrativo de la Johnson Wax, comenzado ese mismo año....


...En el edificio administrativo de la Johnson Wax, esta metáfora orgánica se revelaba en unas columnas fungiformes, altas, esbeltas y más estrechas en la base, que forman el sistema principal de soporte dentro de un espacio de oficinas de nueve metros de altura, de planta abierta y con aire acondicionado. Estas columnas terminan al nivel de la cubierta en unas anchas piezas circulares de hormigón, a modo de hojas de nenúfar, entre las cuales se “teje” una membrana de tubos de vidrio “pírex”. Estos lucernarios horizontales delicadamente apoyados en las columnas, y las propias columnas –cuyos fustes huecos sirven como bajantes de aguas pluviales y cuyas bases se articulan con pernos en unos apoyos de bronce-representan conjuntamente la apoteosis de la imaginación técnica de Wright. Este era el destino expresivo de Usonia: una poesía de técnica milagrosa surgida de la audaz inversión de los elementos tradicionales. Así, donde se supone que debe haber algo macizo (la cubierta) está la luz; y donde se supone que debe esta la luz (las paredes) está lo macizo. Sobre esta inversión, Wright escribía:


Unos tubos de vidrio dispuestos como ladrillos en un muro componen todas las superficies luminosas. La luz entra en el edificio por donde solía estar la cornisa. En el interior, la construcción en forma de caja se desvanece completamente. Los muros que sostienen los nervios de vidrio son de ladrillo recocho rojo y arenisca roja de Kasota. Toda la estructura es de hormigón, con armaduras de malla metálica endurecida en frio.


Esta construcción a base de hongos de hormigón llevó a Wright a desarrollar por primera vez un contorno de esquinas curvas y n vocabularios predominantemente circular que, construidos con materiales duros y precisos e iluminados por doquier mediante tubos traslúcidos de vidrio, conferían al edificio un aura “moderno-aerodinámica” que el tiempo no ha conseguido disipar. Al mismo tiempo, esta atmósfera de ciencia ficción hacía del edificio dela Johnson Wax un lugar de trabajo reservado y monástico. Como escribió Henry-Russell Hitchcock: “Se crea cierta ilusión de estar viendo el cielo desde el fondo de un acuario”. Una vez más, como en el edificio Larkin, Wright había creado un ambiente hermético cuya exclusión física del exterior se reforzaba mediante la forma y el color del mobiliario de oficina especialmente diseñado por Wright.


---


FUSCO Renato de ., Historia de la arquitectura Contemporánea. Ed. Celeste. Madrid,1992. 


Pág. 355-358.“La arquitectura orgánica“.  


En los fecundos años treinta pueden reconocerse tres familias morfológicas en las obras del maestro americano, las representadas por el rectángulo, por el triángulo y por el círculo, que, no obstante su inédita articulación, recuerdan en diversas formas el cubismo, el purismo, el neoplasticismo y el arte abstracto...


Al mismo periodo pertenece el conjunto de las oficinas Johnson en Racine, Wisconsin, que marca un nuevo giro en el estilo de Wright: la adopción de una morfología de elementos curvilíneos y la alusión a una dimensión, por así decirlo, utópica. Las oficinas de la Johnson se relacionan con el edificio Larkin, construido treinta años antes. En cuanto a la relación con el entorno, ambas obras son compactas y cerradas en sí mismas, pero mientras que en el Larkin este carácter proviene del bloque paralelepipédico, con sus durísimas esquinas de ladrillo, en el Johnson se realiza mediante la convergencia hacia el interior de las superficies curvilíneas de los cerramientos. Respecto al interior, mientras que en el edificio de Buffalo hay un espacio central estrecho que llega hasta la cubierta, rodeado por galerías, en un sistema inmóvil y severo de pilares y balaustradas macizas, Wright realiza en el de Racine uno de los espacios más libres e imprevistos de toda la arquitectura contemporánea, desde la estructura elástica antisismica al empleo de las características columnas en forma de hongo, desde el gran techo luminoso a las bandas continuas de las paredes perimetrales de elementos transparentes perforados por tubos de pirex. Este edificio es el inicio, o por lo menos constituye el mejor ejemplo, de las obras desarrolladas sobre la morfología curvilínea ya citada, que representa otra de las contribuciones de Wright a la arquitectura orgánica. Entre ellas recordaremos la torre-laboratorio del mismo conjunto Johnson, realizada en 1950; la segunda casa Jacobs, construida en 1948 (con primera, de 1937, «Wright creó el primer tipo de casa «usoniana», es decir, la respuesta suburbana o, mejor, rural, a las casas Citrohan de Le Corbusier, racionalistamente urbanas»); la casa para su hijo David de 1952; los almacenes Morris de 1948 que con su espiral interior ya anuncian el célebre Museo Guggenheim, construido entre 1946 y 1959. Hemos apuntado ya la dimensión utópica de estos edificios de trazado curvilineo. Efectivamente, el Johnson Wax Building anticipa en los años treinta la imagen arquitectónica y ambiental que puede encontrarse hoy en algunos centros espaciales, aunque en el lugar de los mecanismos electrónicos Wright maneja sus configuraciones futuristas con acentos de carácter arcaico; pueden encontrarse en diversos lugares referencias a las arquitecturas pre-colombinas y cretense-micénicas.


---


 KOSTOF, Spiro., Historia de la arquitectura. Alianza Editorial. Madrid 1988. Tomo 3


 págs.1263-1315.“En paz con el pasado. Las últimas décadas” 


Págs.1286-1303.El Estilo Internacional. Rechazo y renovación.


pág.1288 .. En situaciones urbanas, la arquitectura se vuelve hacia su interior; Wright, que prestaba atención a la naturaleza, no iba atender en absoluto a la obra de otras personas. Para el espacio de la oficina central del Edificio de la Administración de la Johnson Wax en Racine, Wisconsin (1936-1937), crea una especie de ambiente subacuatíco cerrando los muros a la luz del día y dejando que la luz caiga de un techo de tuberías de cristal pyrex encajado en los intersticios de las anchas hotas de nenúfarde cemento. Estas, a su vez, descansan sobre esbeltas columnas huecas con perfil de seta y con un fuste cónico invertido, que también actúa como desague de tormentas. Externamente hace desvanecerse los ángulos rectos mediante curvas aerodinámicas. Aquí está el principio de la preocupación de Wright por el círculo, por engullirlos y atraerlos al interior a través de una estrecha apertura y por lanzarlos a un extraño mundo cerrada de fantasía.  Esto por una parte, y por otra parte, en este período posterior de su larga carrera, está la abstracción pintortesca; los hexágonos y puntos horadados, fragmentación puntiaguda, superficies escamosas. Es una visión privada, romántica y trascendental, controlada hasta sus últimas consecuencias mediante la maestra geometría de Wright y su infalible sentido de la escala....


... El irresistible ejemplo de Le Corbusier y Wright inauguró una temporada de formas atrevidas que se adentró en los sesenta. Esta era la llegada a la mayoría de edad de una segunda generación de arquitectos modernos, ansiosa de desprenderse de los razonamientos moralizantes de los padres fundadores. “No se de donde vienen las formas” declaraba Philip Johnson (nacido en 1906) “pero eso no tiene absolutamente nada que ver con los aspectos sociológicos de nuestra arquitectura”. Y decía de nuevo Johnson. “Las formas siempre siguen a las formas y no a la función”.


 


---


 


 

Subir